EasyManua.ls Logo

Infiniton CL-85EH - Page 10

Infiniton CL-85EH
Print Icon
To Next Page IconTo Next Page
To Next Page IconTo Next Page
To Previous Page IconTo Previous Page
To Previous Page IconTo Previous Page
Loading...
inniton.es12
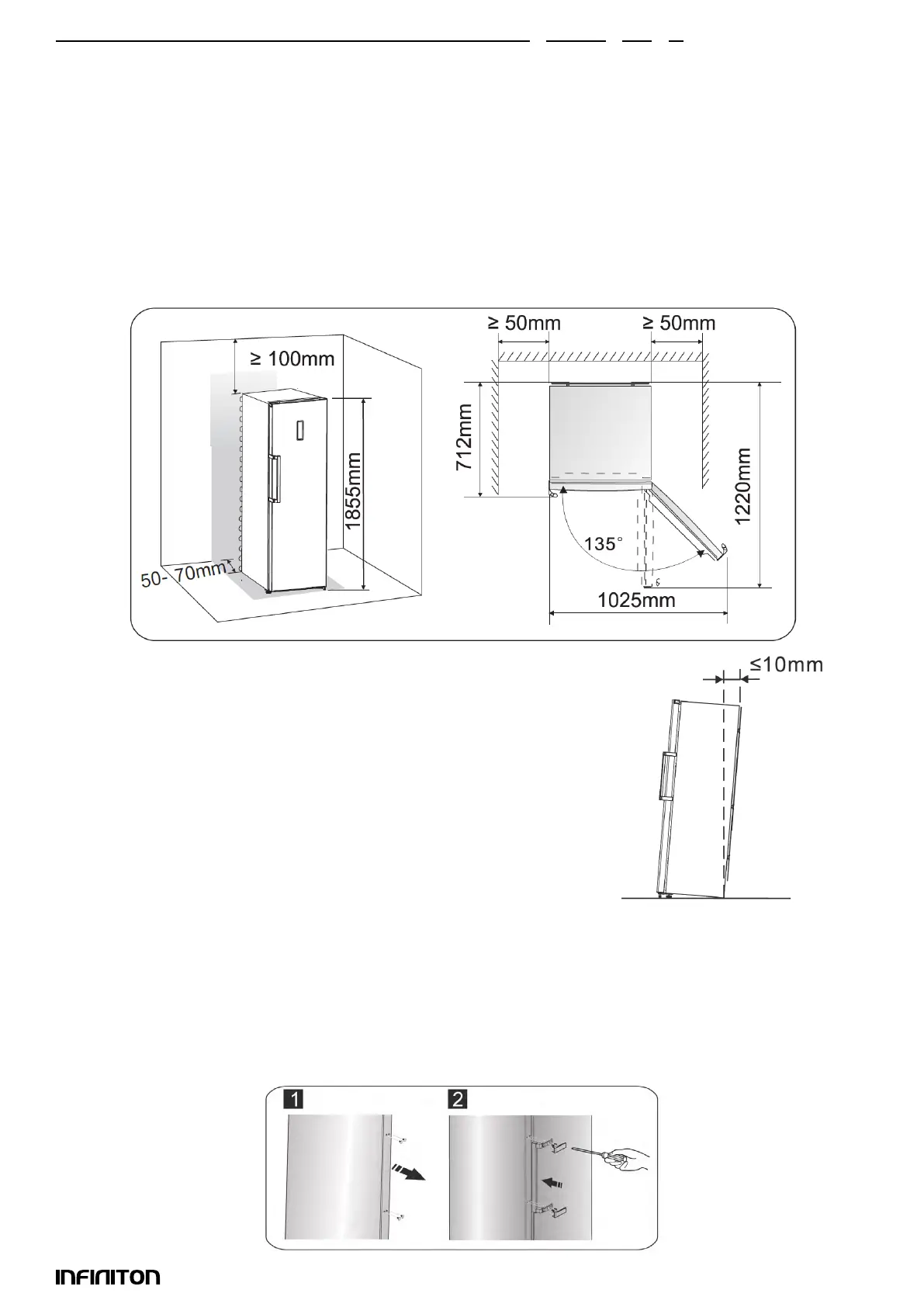
Instalación
Español

Ventilación







Nivelación






Montaje de los tiradores










Related product manuals