EasyManua.ls Logo

Infiniton CL-85EH - Page 34

Infiniton CL-85EH
Print Icon
To Next Page IconTo Next Page
To Next Page IconTo Next Page
To Previous Page IconTo Previous Page
To Previous Page IconTo Previous Page
Loading...
inniton.es36

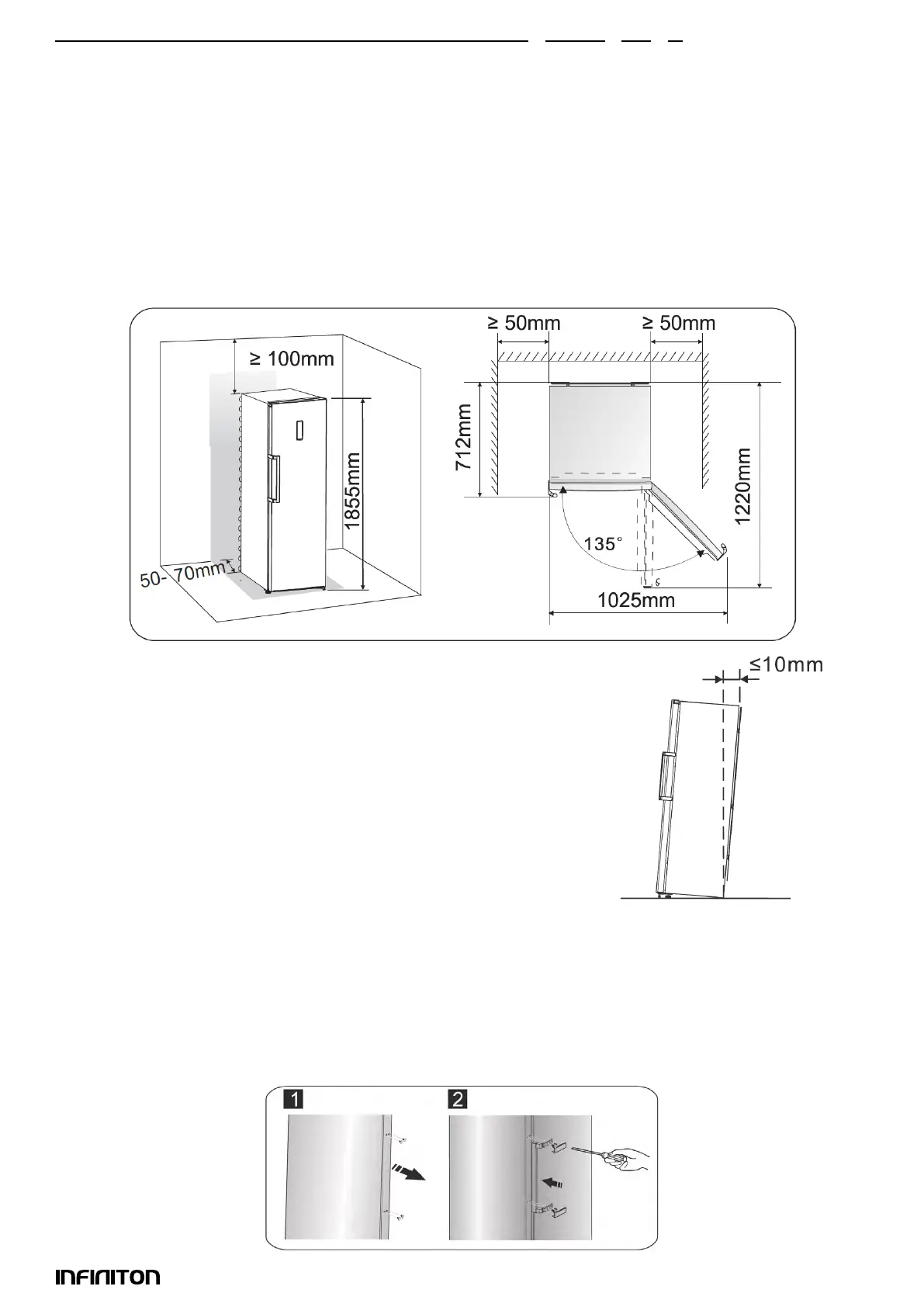
Ventilation






Levelling





Mounting of handles






Installation


Related product manuals