EasyManua.ls Logo

Infiniton CV-BB29 - Page 14

Infiniton CV-BB29
Print Icon
To Next Page IconTo Next Page
To Next Page IconTo Next Page
To Previous Page IconTo Previous Page
To Previous Page IconTo Previous Page
Loading...
15
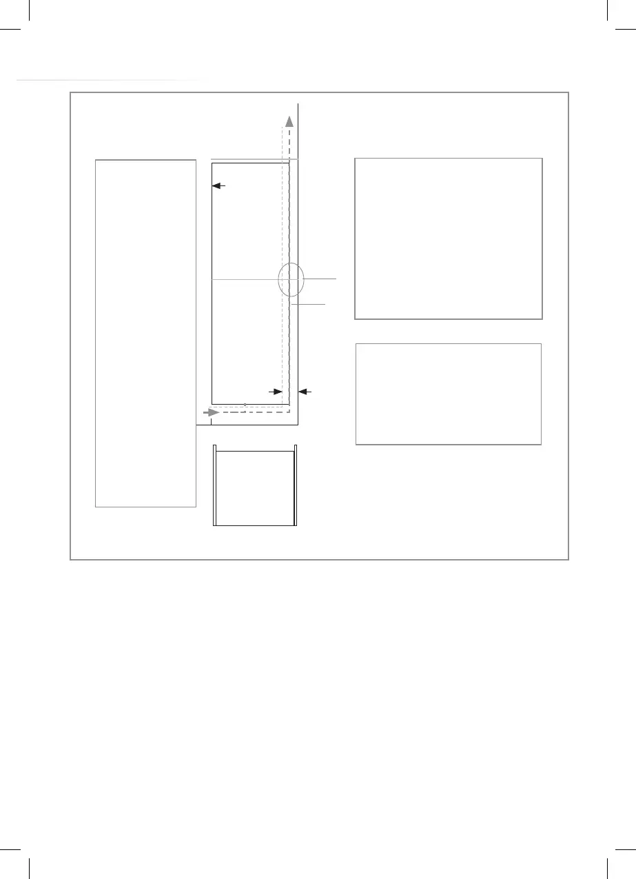
El canal abierto en la parte trasera se muestra claramente. Para
el correcto funcionamiento del aparato es importante que la
parte superior de la carcasa no esté bloqueada. Una
profundidad de canal de 40-50 mm es normal con la mayoría de
las unidades.
Se requiere un orificio de ventilación en el zócalo de la unidad;
esto permite que el aire pase sobre el compresor y el
intercambio de calor. El flujo de aire requerido se puede lograr
retirando una sección delgada del zócalo (se recomienda 600
mm x 10 mm como mínimo).
vista en planta del
espacio de ventilación
trasero
La parte superior del gabinete debe
ventilarse en la habitación.
Tamaño recomendado de la abertura
de ventilación: 500 x 30 mm
Si los muebles no permiten la entrada
de aire libre en la habitación,
entonces se debe proporcionar un
respiradero de zócalo u otros medios
de ventilación para garantizar un flujo
de aire natural.
Debe haber espacio en la parte trasera
del gabinete para permitir que el aire
frío pase sobre el condensador.
Recomendado:
500 x 35 mm
Se debe
proporcionar una
entrada de aire en
algún lugar del
recorrido del
gabinete para
permitir la entrada
de aire libre. En este
ejemplo, se muestra
un respiradero de
zócalo * debajo del
refrigerador.
Se debe hacer un
corte en el zócalo *
debajo del
refrigerador /
congelador y esto
terminado
cuidadosamente
usando una rejilla de
ventilación.
Alternativamente, se
puede quitar una
sección delgada del
zócalo * para
permitir que entre
aire en la unidad (se
recomienda 600 mm
x 10 mm).
Esquema del
refrigerador
Min 30mm
Fig. 7
* Tenga en cuenta que la rejilla / ventilación
de zócalo no está incluido con el aparato.
Esto se proporciona como una guía para
ayudar a la instalación. Su instalador podrá
determinar si se le solicitará que compre una
rejilla / ventilación de zócalo para su tipo de
instalación o no.

Related product manuals