EasyManua.ls Logo

Infiniton CV-BB29 - Page 35

Infiniton CV-BB29
Print Icon
To Next Page IconTo Next Page
To Next Page IconTo Next Page
To Previous Page IconTo Previous Page
To Previous Page IconTo Previous Page
Loading...
15
consumption, total system failure and may invalidate the warranty
provided with the appliance. For products intended to be installed
into a tall housing unit, the following requirements need to be met:
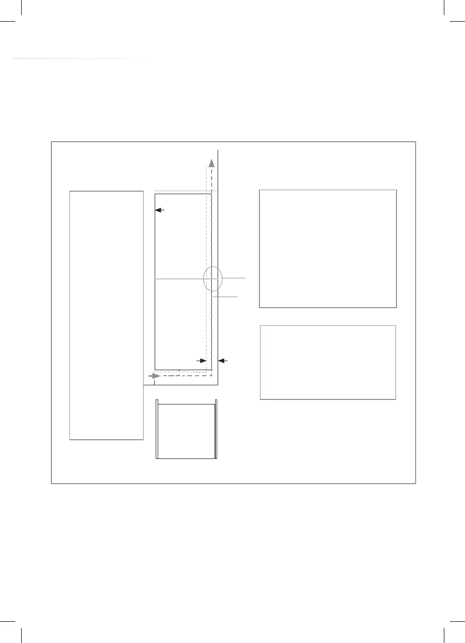
The open channel at the rear is clearly shown. For the correct
operation of the appliance it is important that the top of the
housing unit is not blocked off. A channel depth of 40-50mm is
normal with most units.
A ventilation hole is required in the plinth of the unit; this allows air
to
plan view of rear ventilation gap
The top of the cabinet needs to be
vented into the room
Recommended size of vent opening:
500 x 30mm
If the furniture does not allow free air
into the room then a plinth vent, or
other means of ventilation needs to be
provided to ensure a natural flow of air
There should be space at the rear of the
cabinet to allow cool air to be drawn
over the condenser.
Recommended:
500 x 35mm
An air intake should
be provided
somewhere in the
cabinet run to allow
free air in. In this
example, a * plinth
vent is shown
underneath the
refrigerator .
A cutout should be
made in the * plinth
below the fridge/
freezer and this
finished neatly
using the air vent
grille.
Alternatively, a thin
section of the *
plinth
can be removed to
allow air into the unit
(recommended
600mm x 10mm).
Refrigerator
outline
Min 30mm
Fig. 7
* Please note a plinth vent / grill is not
included with the appliance. This is given as a
guide to aid installation. Your installer will be
able to determine if you would be required to
buy a plinth vent / grill for your type of
installation or not.

Related product manuals