EasyManua.ls Logo

Infiniton CV-BB29 - Page 56

Infiniton CV-BB29
Print Icon
To Next Page IconTo Next Page
To Next Page IconTo Next Page
To Previous Page IconTo Previous Page
To Previous Page IconTo Previous Page
Loading...
15
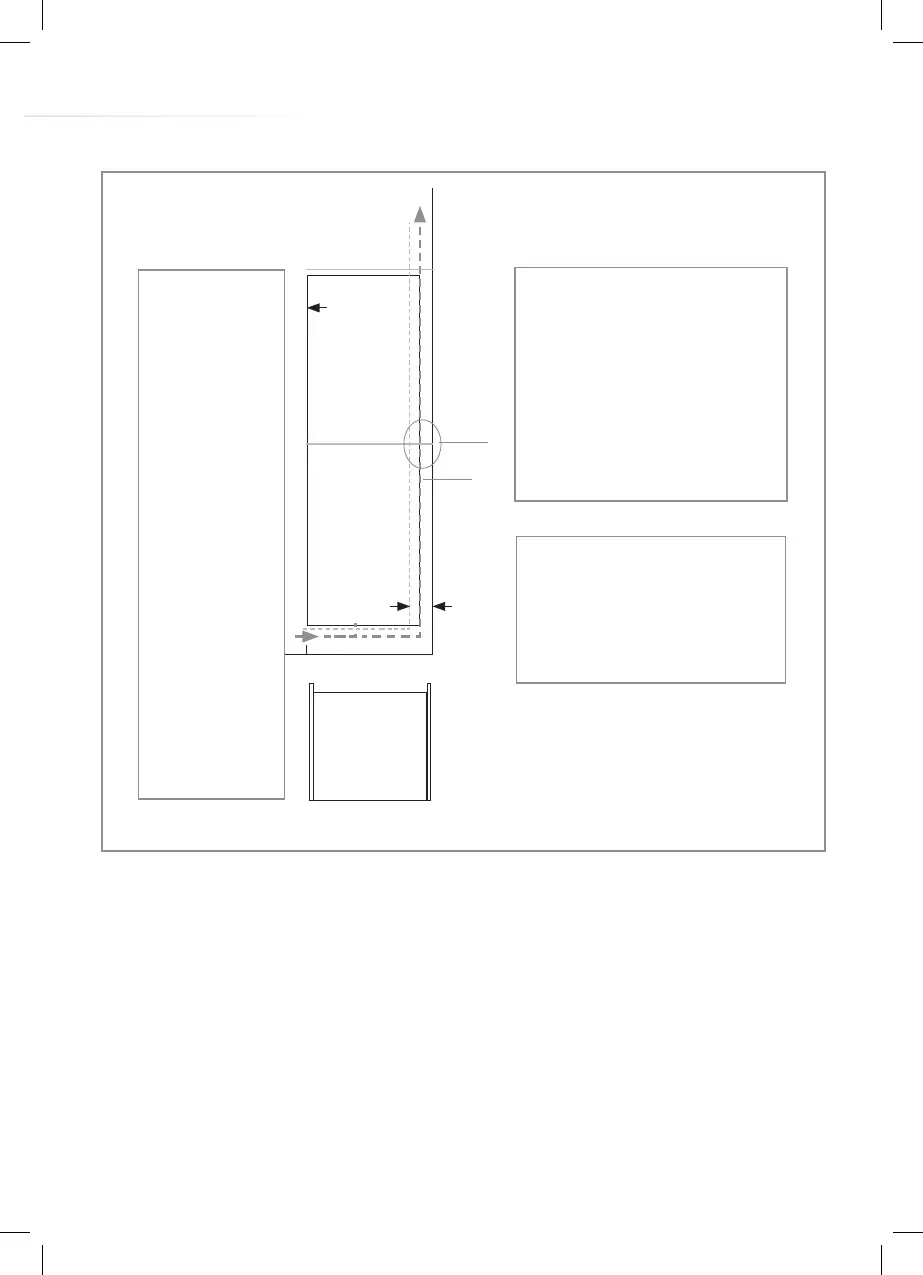
O canal aberto na parte traseira é mostrado claramente. Para o
correcto funcionamento do aparelho é importante que a parte
superior da unidade de alojamento não fique bloqueada. Uma
profundidade de canal de 40-50 mm é normal com a maioria das
unidades.
É necessário um orifício de ventilação no pedestal da unidade;
isso permite que o ar seja puxado sobre o compressor e a troca
de calor. O fluxo de ar necessário pode ser obtido pela remoção
de uma seção fina do pedestal (recomendado 600 mm x 10 mm
no mínimo).
plan view of rear ventilation gap
A parte superior do gabinete precisa
ser ventilada para dentro da sala
Tamanho recomendado da abertura
de ventilação: 500 x 30 mm
Se a mobília não permitir a entrada de
ar livre na sala, uma abertura de
plinto ou outro meio de ventilação
deve ser fornecido para garantir um
fluxo natural de ar
Deve haver espaço na parte traseira do
gabinete para permitir que o ar frio seja
puxado sobre o condensador.
Recomendado:
500 x 35 mm
Uma entrada de ar
deve ser fornecida
em algum lugar no
gabinete para
permitir a entrada de
ar livre. Neste
exemplo, uma *
ventilação do
pedestal é mostrada
embaixo do
refrigerador.
Um recorte deve ser
feito no * pedestal
abaixo do
refrigerador /
freezer e finalizado
de forma
organizada usando
a grade de
ventilação.
Como alternativa,
uma seção fina do *
pedestal pode ser
removida para
permitir a entrada de
ar na unidade
(recomendado 600
mm x 10 mm).
Refrigerator
outline
Min 30mm
Fig. 7
* Por favor, observe que a ventilação / grade do
pedestal não é
incluído com o aparelho. Isso é fornecido como um
guia para ajudar na instalação. Seu instalador será
capaz de determinar se você precisará comprar uma
grade / ventilação do pedestal para o seu tipo de
instalação ou não.

Related product manuals