EasyManua.ls Logo

Infiniton SBS-668WDIX - Page 5

Infiniton SBS-668WDIX
36 pages
Print Icon
To Next Page IconTo Next Page
To Next Page IconTo Next Page
To Previous Page IconTo Previous Page
To Previous Page IconTo Previous Page
Loading...
4
To make sure of good working, let the refrigerator stand static at least one hour before plugging it into
the wall outlet.
(2) Cleaning the refrigerator
Clean the inside of the refrigerator with soft cloth.
(3) Plug the refrigerator
Plug the refrigerator into a dedicated, properly installed wall outlet. After the compressor works for
an hour, open the freezer door and you will find the temperature falls obviously and this shows
proper refrigeration.
(4) Put the food in the refrigerator after the unit fully cools down
After the refrigerator works for a while, the unit will automatically control its temperature according to the
setting of the user. When the unit fully cools down, put in the food and it will fully cools down in 2 to 3
hours. In summer time, it takes at least 4 hours for the food to fully cool down. (Do not open the
refrigerator too much before the unit gets cool.)
INTRODUCTION
Before use
Please read these instructions and the Safety guidelines on page 1 carefully before using your new
Fridge/Freezer. The Fridge/Freezer is for indoor, domestic use only.
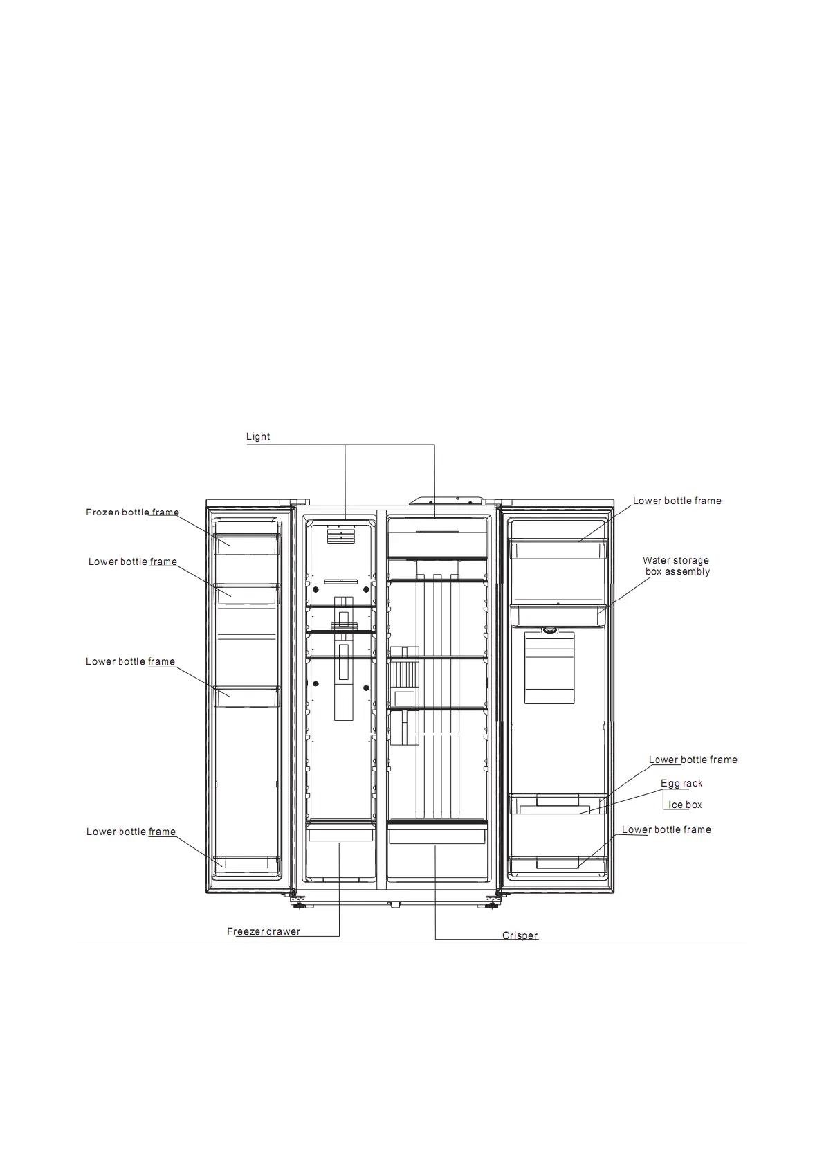
General Description of Refrigerator

Related product manuals