EasyManua.ls Logo

Insinger CA-3 - Page 27

Insinger CA-3
52 pages
Print Icon
To Next Page IconTo Next Page
To Next Page IconTo Next Page
To Previous Page IconTo Previous Page
To Previous Page IconTo Previous Page
Loading...
25
®
PART 6 PARTS & ASSEMBLIES
CA-3 & DA-3 Technical Manual 2018 www.insingermachine.com 800-344-4802
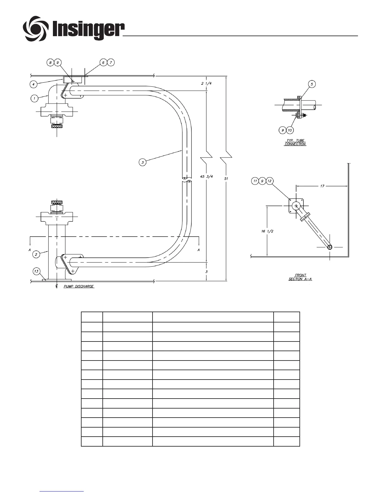
1172-11 : CA-3 Discharge Line Assembly
ITEM PART NO. DESCRIPTION QTY
1 1172-57 Upper Manifold Assembly 1
2 1172-56 Lower Manifold Assembly 1
3 1172-12 Discharge Line Tube Assembly 1
4 1172-50 Flange Support 1
5 D2620 Cupseal - Parker 8406-0150-4180 2
6 D309C-HC-5A Screw Hex Head 5/16-18 x 5/8” S/S 2
7 D312C-HC-5 Locknut 5/16-18 2
8 D309C-JC-10A Screw Hex Head 3/8-16 x 1 1/4” S/S 1
9 D312C-JC-5 Locknut 3/8-16 10
10 D309C-JC-9A Screw Hex Head 3/8-16 x 1 1/8” S/S 5
11 D309C-JC-11A Screw Hex Head 3/8-16 x 1 3/8” S/S 4
12 D313A-J1 Washer 3/8”, Copper 4
13 - Plumber’s Putty AR
REV A - 07/15/94

Other manuals for Insinger CA-3