EasyManua.ls Logo

Invicta 700GA - Page 3

Invicta 700GA
Print Icon
To Next Page IconTo Next Page
To Next Page IconTo Next Page
To Previous Page IconTo Previous Page
To Previous Page IconTo Previous Page
Loading...
Insert 700GA
insert 700 GA
Model: 967443
BP le 11/02/2019 Page 3 sur
9
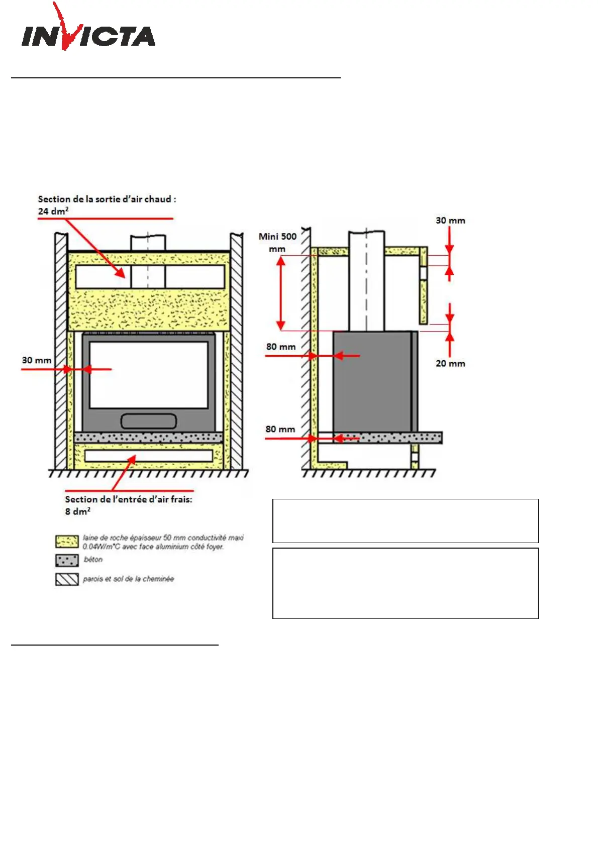
INSTRUCTION POUR L’INSTALLATION DE L’APPAREIL.
Pour limiter l’échauffement des murs et du sol de la maison situés dans l’environnement de la cheminée à construire à 65K (K = degrés
Celsius au-dessus de la température ambiante), et obtenir un bon fonctionnement de l’appareil, il est nécessaire de respecter le principe des
dispositions du schéma ci-après.
Respecter les dimensions minimales d’encastrement et du circuit d’air de convection (section d’entrée de « l’air à chauffer » et section de
sortie de « l’air chaud »).
Les dimensions minimales d’encastrement indiquées garantissent l’accès aux organes de manœuvre, une course suffisante pour les organes
mobiles, l’accès et le démontage pour les pièces susceptibles d’être remplacées.
Raccordement électrique de la soufflerie
Alimentation électrique 230 V / 50 Hz - puissance de la soufflerie : 38 W
L’appareil est livré avec un câble souple, permettant son raccordement au réseau d’alimentation électrique.
Prévoir sur l’installation fixe un dispositif de séparation omnipolaire conformément aux règles d’utilisation locales : ce dispositif permettra
d’isoler l’appareil du réseau d’alimentation électrique. En particulier le branchement de la terre (fil vert et jaune) devra être effectué.
Si le câble d’alimentation est endommagé, il doit être remplacé par le fabriquant afin d’éviter un danger.
Il peut être nécessaire d’extraire l’insert de son logement : dans ce but réserver une longueur de câble suffisante pour que cette opération
puisse être effectuée sans provoquer de traction sur le câble.
Le câble d’alimentation ne doit pas être accessible aux utilisateurs.
Prévoir une gaine ou un conduit de protection entre la sortie de la
maçonnerie et le point de raccordement
Cet appareil n’est pas prévu pour être utilisé par des personnes (y
compris les enfants) dont les capacités physiques, sensorielles ou
mentales sont réduites, ou des personnes dénuées d’expérience ou de
connaissance, sauf si elles ont pu bénéficier, par l’intermédiaire
d’une personne responsable de leur sécurité, d’une surveillance ou
d’instructions préalables concernant l’utilisation de l’appareil.

Related product manuals