EasyManua.ls Logo

IPSO CHM2097N - Page 72

IPSO CHM2097N
75 pages
Print Icon
To Next Page IconTo Next Page
To Next Page IconTo Next Page
To Previous Page IconTo Previous Page
To Previous Page IconTo Previous Page
Loading...
© Copyright, Alliance Laundry Systems LLC – DO NOT COPY or TRANSMIT
Washer-Extractors
5-08-51
71
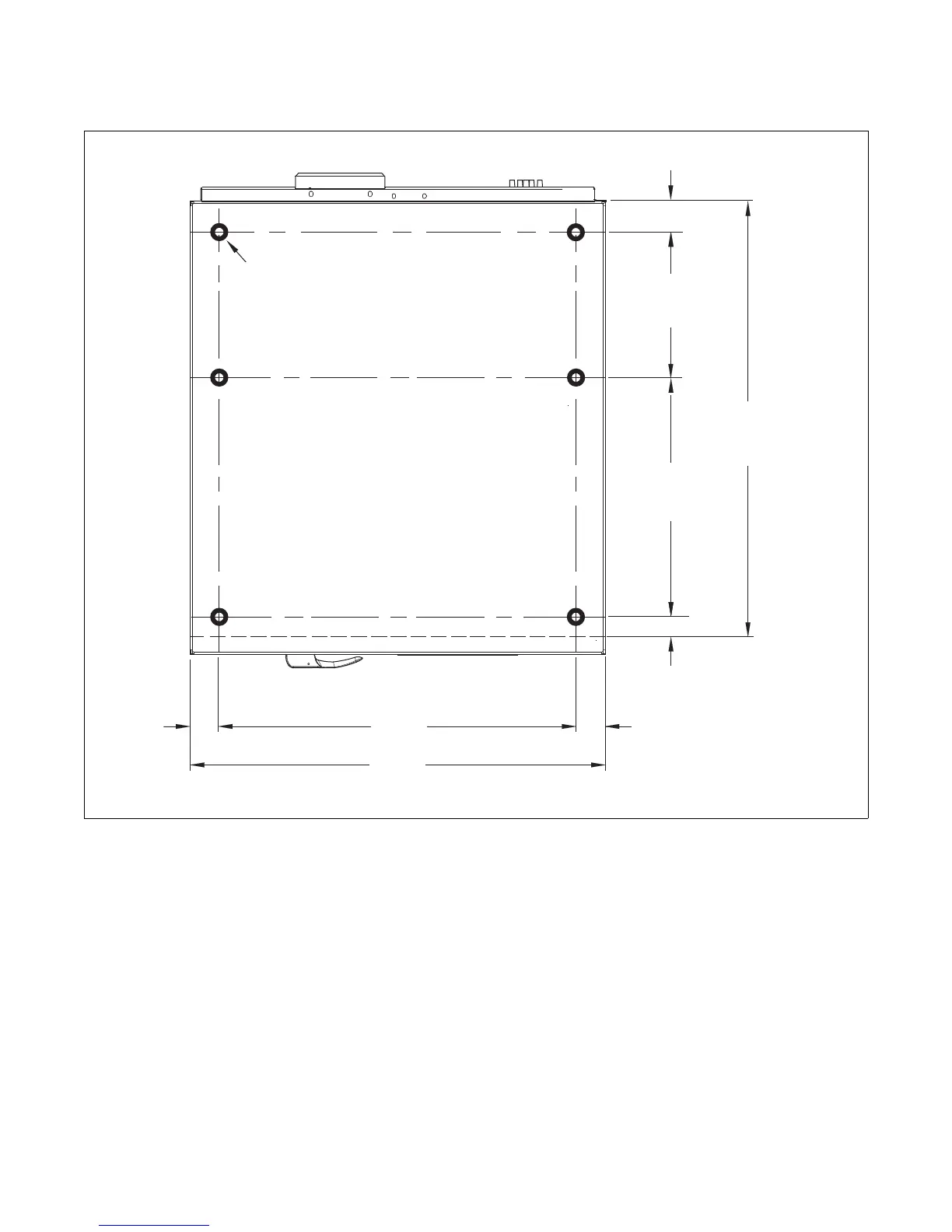
Mounting Bolt Hole Locations - Model IWF075 (M-speed)
CHM2171N
Figure 42
CHM2171N
1.81 in.
(46 mm)
33.46 in.
(850 mm)
2.64 in.
(67 mm)
22.44 in.
(570 mm)
40.55 in.
(1030 mm)
2.76 in.
(70 mm)
13.66 in.
(347 mm)
2.76 in.
(70 mm)
38.98 in.
(990 mm)
ø1.06 in.
(ø27 mm)

Related product manuals