EasyManua.ls Logo

JRC JMA-5210-6 - Radar Failure Check List

JRC JMA-5210-6
462 pages
To Next Page IconTo Next Page
To Next Page IconTo Next Page
To Previous Page IconTo Previous Page
To Previous Page IconTo Previous Page
Loading...
AFTER-SALES SERVICE
y
yyyy
y
y
y
y
9
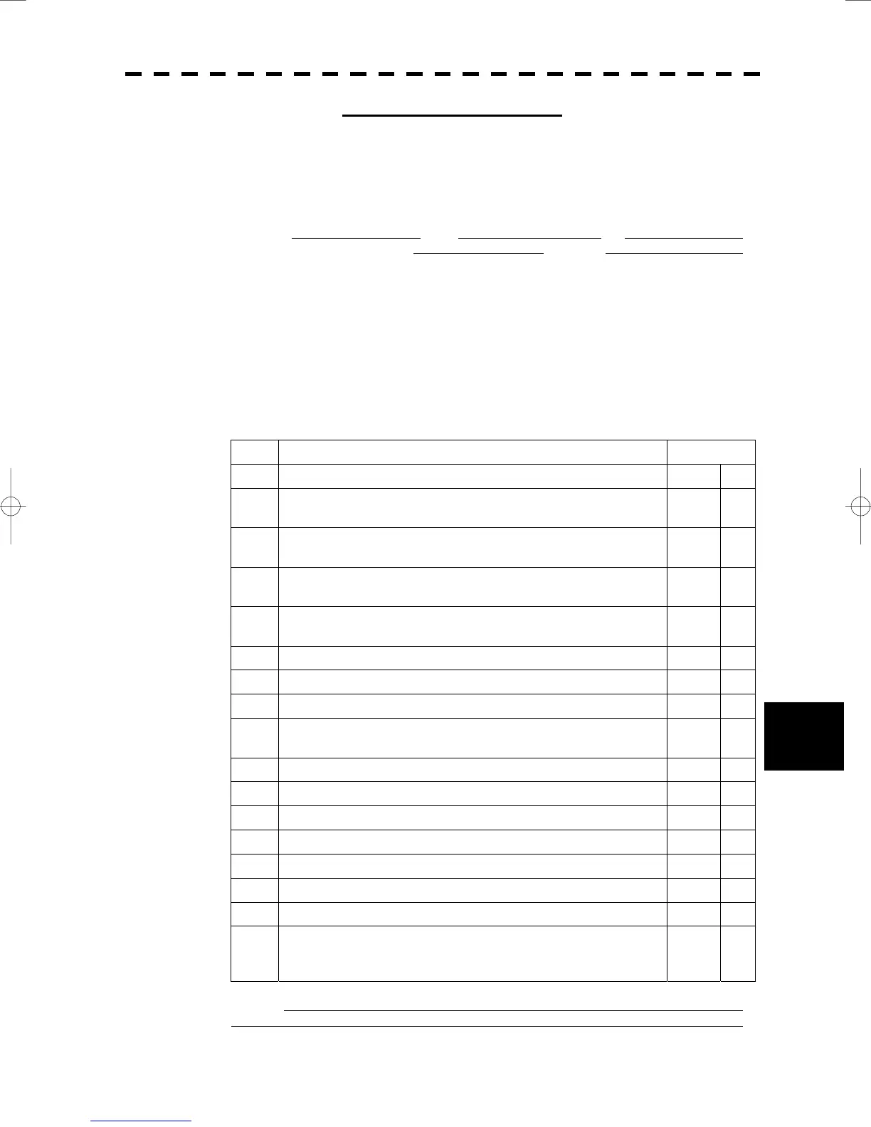
Radar Failure Check List
When placing an order for repair of the product, it is requested that you could confirm the check
items and fill the results and sent the sheet to our contact.
If there is any unclear items, contact the ship on which the product is installed, and give the
correct information on the product.
Ship name: Phone: Fax:
Radar general model name: JMA- Serial No. :
(Write the full model name correctly)
(1) Check the following items in the order of the number, and circle the applicable answer
between YES or NO. If the item cannot be determined as YES or NO, explain in detail in
the item (18), others.
(2) If any of the items (1) to (5) is marked as NO, check the fuse of the product (refer to Section
8.2 and 8.3).
(3) Check the items (4) to (17) while the transmission (TX) is ON.
* Functions mentioned in the items (14), (15) and (17) may be optional, answer is not
necessary.
No. Check Item Result
(1) Power can be turned on. (The lamp on the operation panel is lit) YES NO
(2)
A few minutes after powering-on, it will become standby status (TX
Ready).
YES NO
(3)
When powering-on (or TX ON), LCD displays something (LCD is
lit).
YES NO
(4)
The scanner rotates at the transmission (TX) ON.
(Check the following items while transmission is ON)
YES NO
(5)
Current is supplied to the magnetron. (Refer to the instruction
manual)
YES NO
(6) Turning is enabled. (Check with the range of 6 NM or more) YES NO
(7) Fixed marker is displayed. YES NO
(8) VRM is displayed. YES NO
(9)
While noise is displayed while set at STC and FTC minimum, GAIN
maximum, IR-OFF and range 48 NM.
YES NO
(10) Target reflection echo is displayed. YES NO
(11) Sensitivity of reflection echo is normal. YES NO
(12) EBL is displayed. YES NO
(13) Cursor mark moves. YES NO
*(14) GYRO course can be set and normally displayed. YES NO
*(15) LOG speed can be normally displayed. YES NO
(16) ATA works normally. YES NO
*(17)
If equipped with an interswitch, when switching from the straight
mode (II) to (X), the failures (items marked NO) in the above (1) to
(16), are switched over to the other unit.
YES NO
(18)
Others (Error message, etc. )
92

Table of Contents

Related product manuals