EasyManua.ls Logo

JVC TK-C600 - Page 24

JVC TK-C600
53 pages
Print Icon
To Next Page IconTo Next Page
To Next Page IconTo Next Page
To Previous Page IconTo Previous Page
To Previous Page IconTo Previous Page
Loading...
—-—
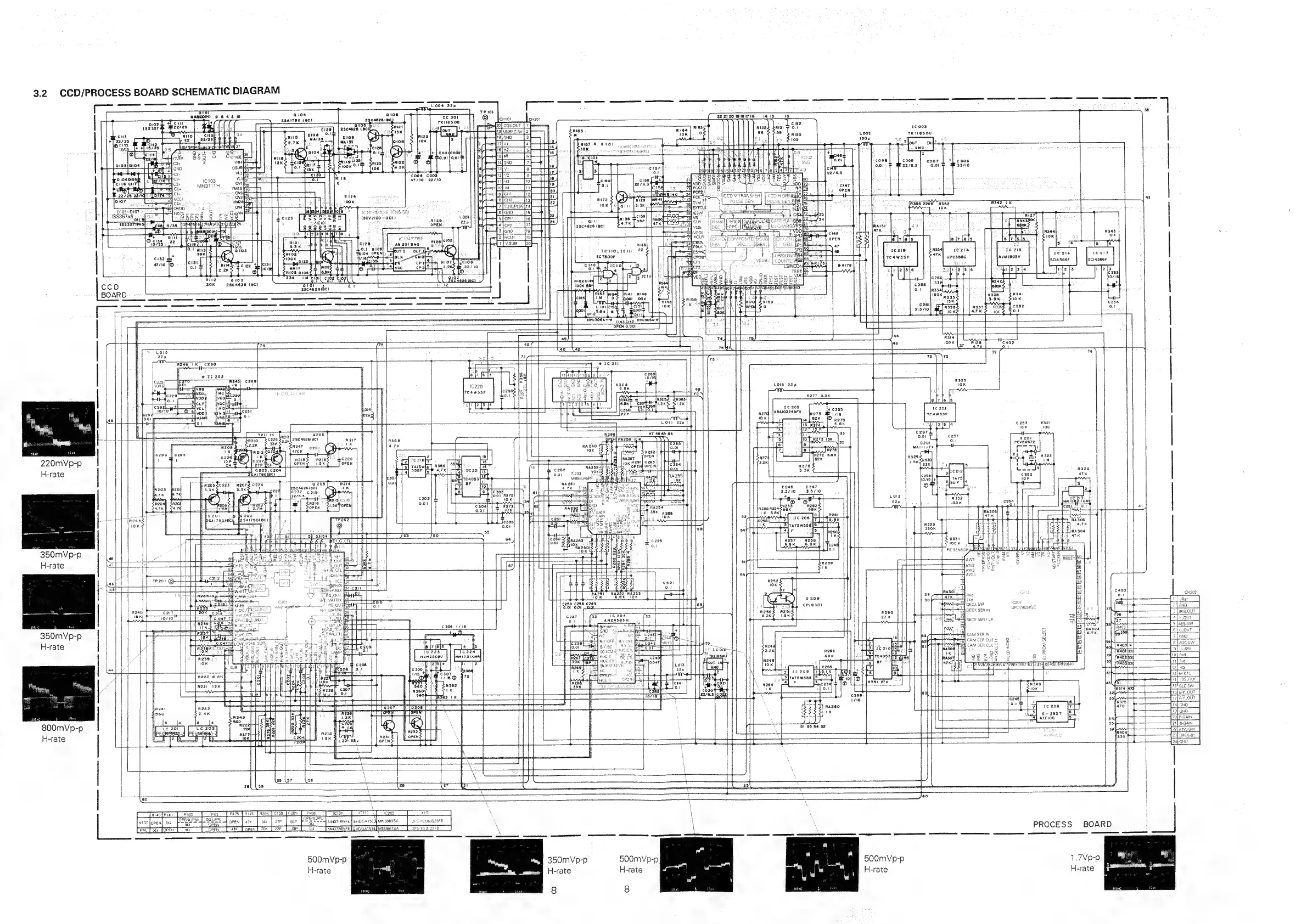
3.2
CCD/PROCESS
BOARD
SCHEMATIC
DIAGRAM
MABIOOIH)
9
6
4
8
10
(0103~D107
1SS357x5
sive
C132
py?
47/10:
1D
20K
284626
(8c)
104
2Sa1790
(BC)
Mali
R103
R104
San
1M
slo
cape
gop
|
Loo¢
22y
TKII6S
OU
+
|
cooicooz
0.014
0.04
004
C003
47/10
22/10
ator
3
2
28C4626(BC)
ICNIO1
Bs
-
TUNREG
av
|
@
Zz
5
cht
ae
[ea]
[suacrisefia}
[efole[ofa[~fole
[5
~
7
|
SUB_PLSE
}14
meEER®
Ris7
*
X10!
10K
qin
28C4626
(BC)
reno,reus,
22
SCTS00F
3
RIS2
Ci
100K
s6P|
clai
R188
00!
100K
Liot|cisdl
cis)
1
56
‘001
onze
|
*
F
IIL
HYUSOBA=W
ci43
crag
HVUSOBA-W
“OPEN
0.001
22
212019181716
14
13.
NINES
Croat
a
au
WN
/
KE
ig
817)
91et7
1c
003
TKII650U
D
Stour
Nn
GNO
R355
220K
"R352
10K
rk
C290
t
#
IC
202
(C220
TC4WS3F
Q206
2S
4626180)
R247
c22i
470K
1
Lor
22u
LOIS
22u
R277
3.3K
1c
205
XRAIOSZSAFV
67
6665
64
Q
205
25c
4826(8C)
C272
¢2i9
2276.3
t
1P
201
©
R291|
C263
1%
oPEN|
OPEN
£306
1/16
3.3710
3.3710
nes
p
R255
R2543
6Bk
Q.0f
D201
MAIL)
-TX
C283
oP
x
201
PEVBOST2
9209
XPI@301
Si
55 54
52
10207
UPO7BGHaGC
34g
10K
a
1c
208
s-eae7
[8].
ALFIOG
caie
aia
JOPEN|
7
ts
TP
oa
b1S3H
MNIBEOSA
fmnze6isa
|
PROCESS
BOARD

Related product manuals