EasyManua.ls Logo

Kanto M600 - Mount Wall Plate Assembly

Kanto M600
20 pages
Print Icon
To Next Page IconTo Next Page
To Next Page IconTo Next Page
To Previous Page IconTo Previous Page
To Previous Page IconTo Previous Page
Loading...
10
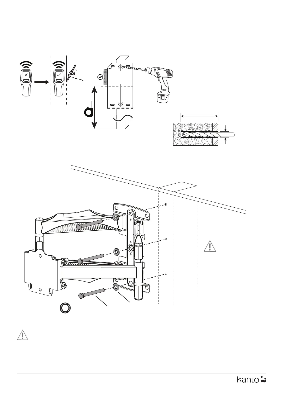
3/16”
(5.0 mm)
3.25(80 mm)
TEMPLATE
MODЀLE
PLANTILLA
WARNING
Do not use concrete
anchors in drywall
or wood stud walls.
AVERTISSEMENT
N’utilisez pas les
ancrages de béton
dans la cloison
seche ou les murs à
montants de bois.
PRECAUCIÓN
No use anclajes de
concreto en panels
de yeso, tabla roca
omuros de madera.
12 mm
CAUTION / ATTENTION / PRECAUCIÓN
Make sure the supporting surface will support the load limits outlined in the caution on page two. Tighten lag bolts (O) until the wall plate is snug against the wall.
Do not over tighten the lag bolts (O). Each lag bolt must be located in the middle of a wood stud.
Assurez-vous que la surface porteuse supporte la limite de poids mentionnée dans les acertissements de précaution en bas de la page deux. Serrez les vis tire-
fond (O) jusqu'à ce quela plaque murale soit bien xèe contre le mur. Ne serrez pas excessivement les vis tire fond (O). Chaque vis tire fond doit être située au
centre d'un montant en bois.
Asegúrese de que la supercie de apoyo soportará los limites de carga descritos en la precaución de la parte inferior de la pagina dos. Apriete los tirafondos
(O) hasta que la placa de pared quede plana y ajustada contra la pared. No apriete en exceso los tirafondos (O). Cada tirafondo deberá estar atornillado a un
travesaño de madera. No use anclajes de concreto en paneles de yeso, tabla roca o muros de madera.
5a. Mount Wall Plate Assembly (Wood Stud Wall)
Montez l'ensemble de plaque murale (montant en bois)
Monte el ensamblaje de la placa de pared (muro de madera)
Mount height depends on TV size, viewing position, and personal preference.
La hauteur du support varie selon la taille du téléviseur, la position de
visualisation et de préférence personnelle.
La altura a la que se instala el montaje depende del tamaño del televisor, la
posición de visualización, y preferencias personales.
5.1
5.2
5.3
5.4
O
Q

Related product manuals