EasyManua.ls Logo

Kärcher HKF 200 E - Page 113

Kärcher HKF 200 E
Print Icon
To Next Page IconTo Next Page
To Next Page IconTo Next Page
To Previous Page IconTo Previous Page
To Previous Page IconTo Previous Page
Loading...
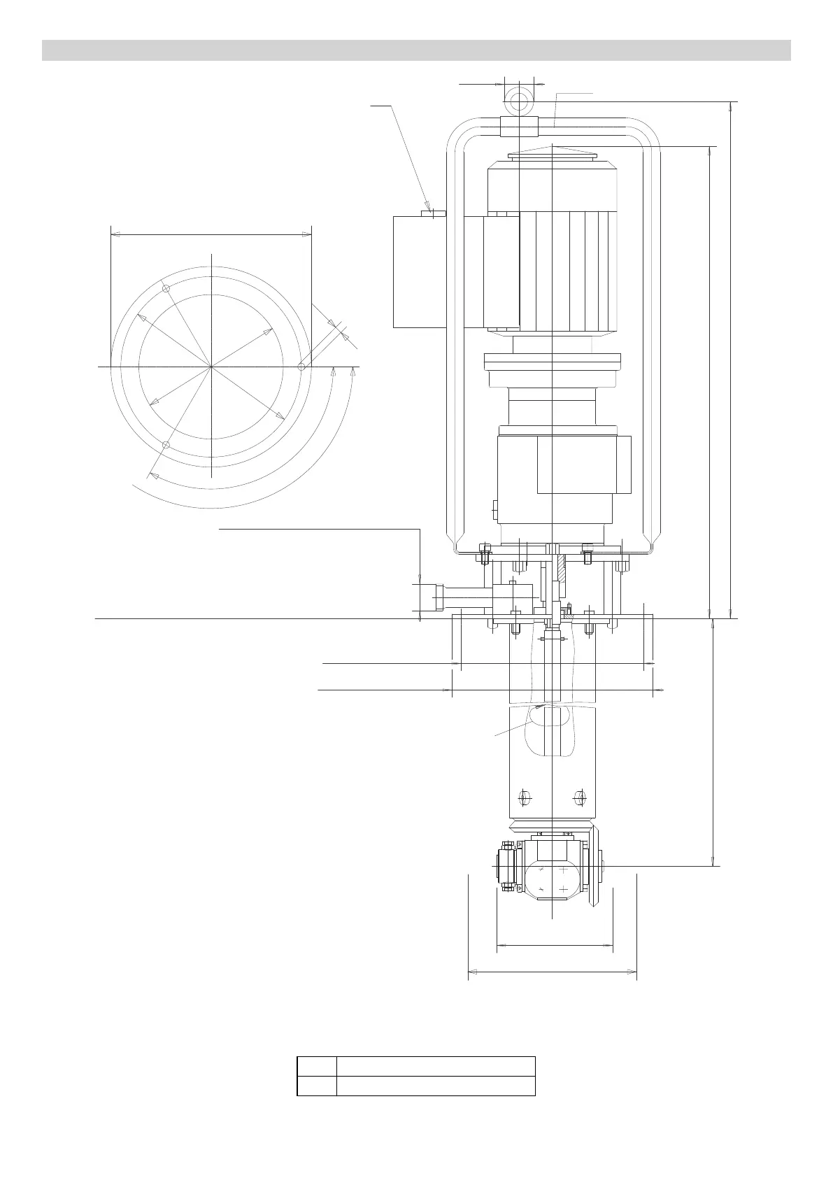
- 7
A Upphängningsbygel (beställnr. 4.034-
126)
B Standardlängd 500 mm
C Föreskriven rotationsriktning
D Flänsdiameter 250 mm
E Hålkretsdiameter 225 mm
F Zon 0/20, kategori 1
G Zon 1, kategori 2 alt. 3
H Tryckanslutning M22x1,5
I Fästflänsens hålbild
J Kabelinförning rundkabel (min. diame-
ter 10 mm - 4x 1,5 mm
2
)
Ritning HKF 200 ET
C
D
E
F
G
H
I
J
30
530
615
180
225
9
120°
3x120°
250
A
B
X
XX
X Minsta införningsdiameter 140 mm
XX Rotationsdiameter 142 mm
113SV