EasyManua.ls Logo

Kärcher HKF 200 E - Page 126

Kärcher HKF 200 E
Print Icon
To Next Page IconTo Next Page
To Next Page IconTo Next Page
To Previous Page IconTo Previous Page
To Previous Page IconTo Previous Page
Loading...
- 7
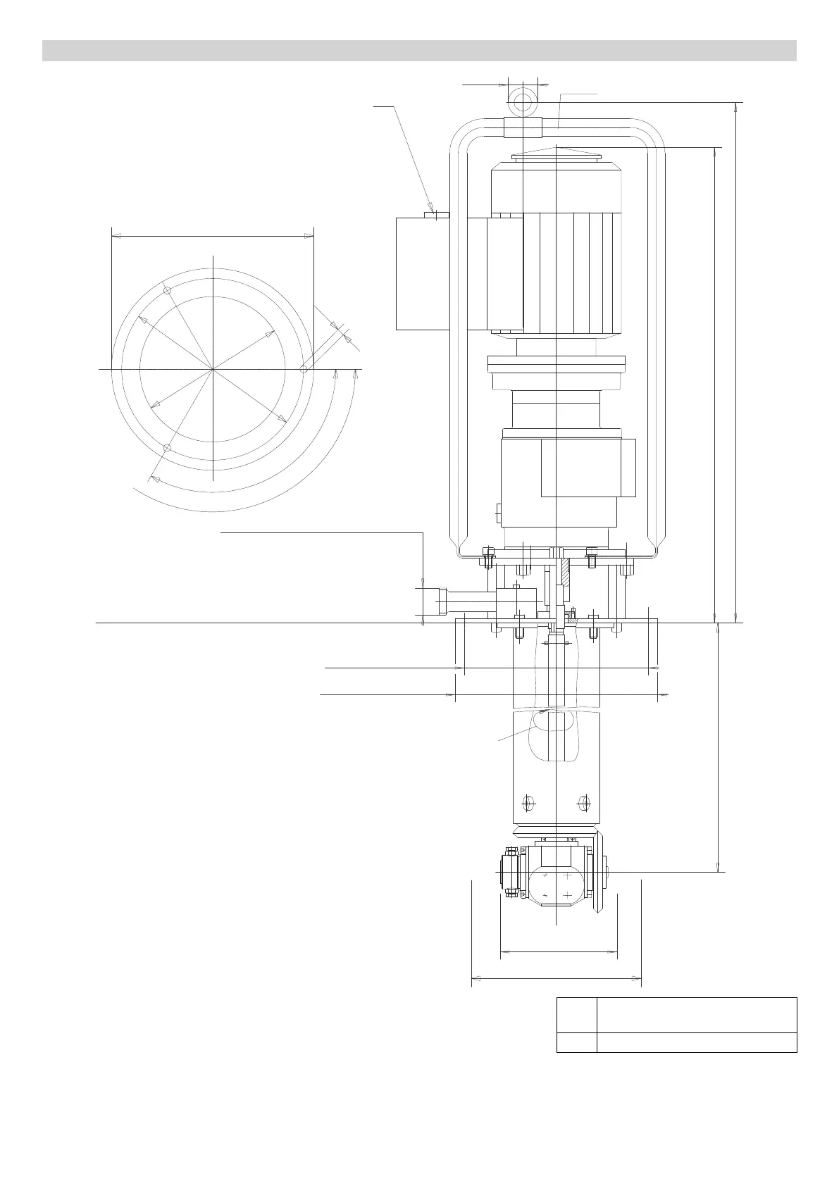
A Ράβδος ανάρτησης (Κωδ. παραγγελίας
4.034-126)
B Στάνταρ μήκος 500 mm
C Προδιαγραμμένη κατεύθυνσης περι-
στροφής
D Διάμετρος φλάντζας 250 mm
E Διάμετρος κύκλου οπών 225 mm
F Ζώνη 0/20, Κατηγορία 1
G Ζώνη 1, Κατηγορία 2 ή 3
H Σύνδεση πίεσης M22x1,5
I Διάταξη των οπών της φλάντζας στερέ-
ωσης
J Είσοδος καλωδίου στρόγγυλο καλώδιο
(ελαχ. διάμετρος 10 mm - 4x 1,5 mm
2
)
Φύλλο διαστάσεων HKF 200 ET
C
D
E
F
G
H
I
J
30
530
615
180
225
9
120°
3x120°
250
A
B
X
XX
X Ελάχιστη διάμετρος εισόδου 140
mm
XX Διάμετρος περιστροφής 142 mm
126 EL