EasyManua.ls Logo

Kärcher HKF 200 E - Page 138

Kärcher HKF 200 E
Print Icon
To Next Page IconTo Next Page
To Next Page IconTo Next Page
To Previous Page IconTo Previous Page
To Previous Page IconTo Previous Page
Loading...
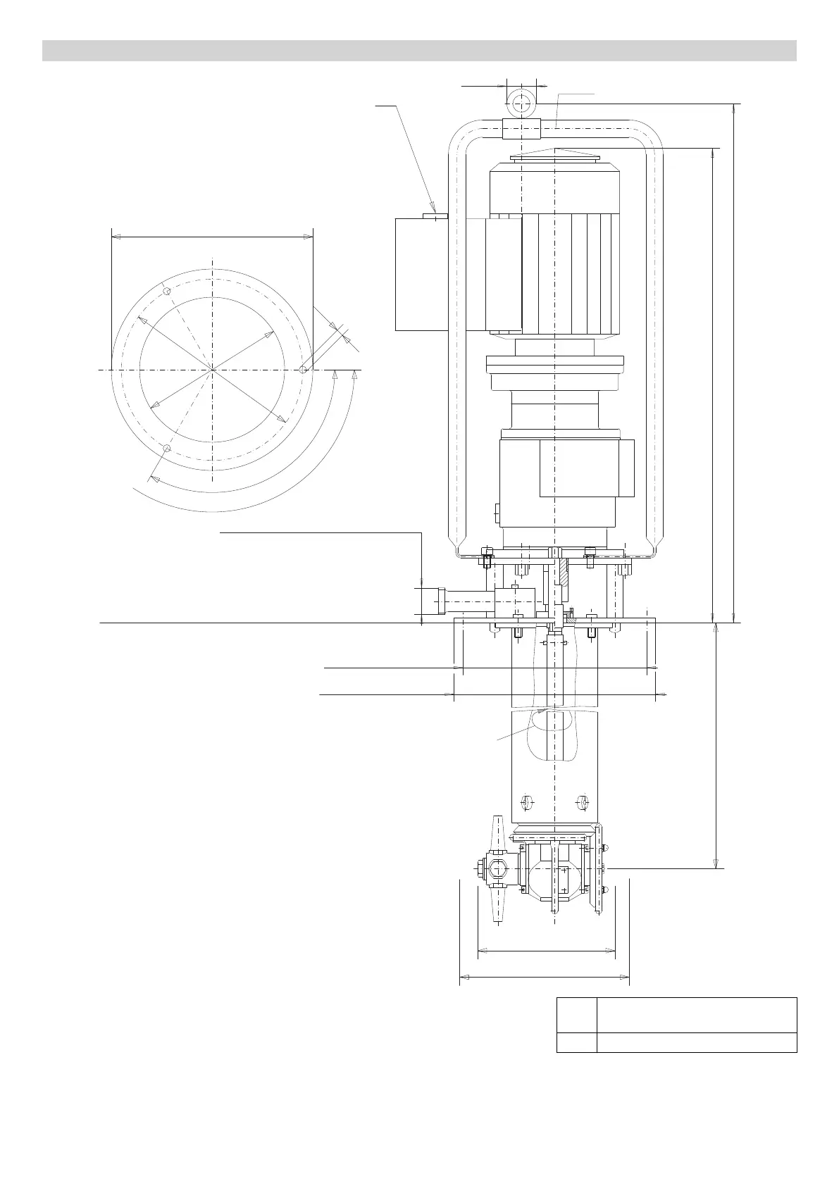
- 6
A Вешалка ( заказа 4.034-126)
B Стандартная длина 800 мм, специ-
альное исполнение 300—1500 мм
C Направление вращения
D Диаметр фланца 250 мм
E Диаметр окружности центров отвер-
стий 255 мм
F Зона 0/20, категория 1
G Зона 1, категория 2 или 3
H Присоединение к трубопроводу
M22x1,5
I Расположение отверстий крепежно-
го фланца
J Кабельная вставка для круглого ка-
беля (минимальный диаметр 10 мм -
4х1,5 мм
2
)
Размерный лист HKF 200 E
C
D
E
F
G
H
I
J
30
530
615
180
225
9
120°
3x120°
250
A
B
X
XX
X Средний диаметр для вставки
180 мм
XX Диаметр вращения 200 мм
138 RU