EasyManua.ls Logo

Kärcher HKF 200 E - Page 151

Kärcher HKF 200 E
Print Icon
To Next Page IconTo Next Page
To Next Page IconTo Next Page
To Previous Page IconTo Previous Page
To Previous Page IconTo Previous Page
Loading...
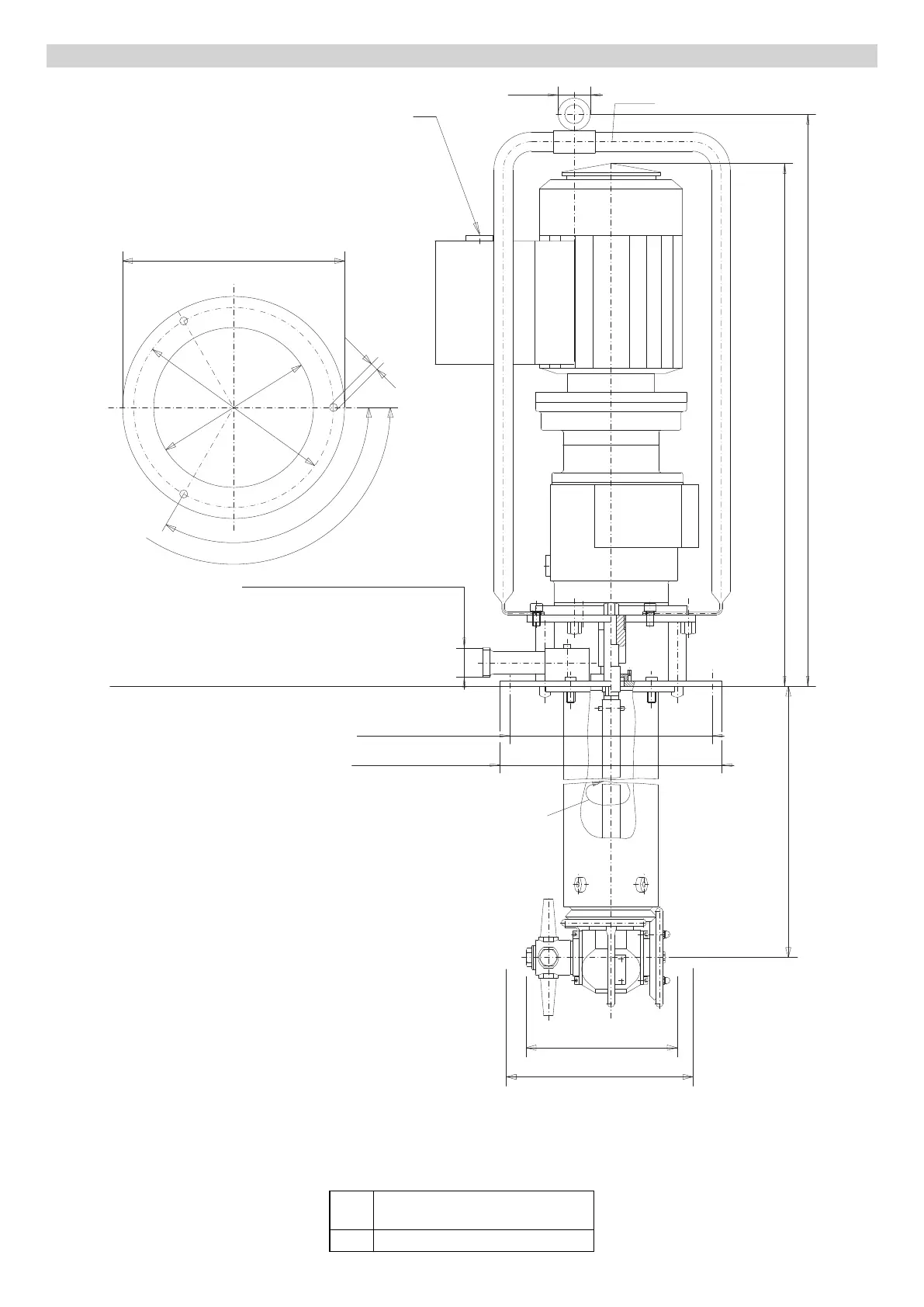
- 6
A Függesztő kengyel (megrendelési
szám: 4.034-126)
B Szabvány hosszúság 800 mm, különle-
ges kivitel 300-1500 mm
CElőírt forgási irány
D Karima átmérő 250 mm
E Lyukkör átmérő 225 mm
F 0/20. zóna, 1. kategória
G 1. zóna, 2. ill. 3. kategória
H Nyomás csatlakozó M22x1,5
I A rögzítő karima lyuk ábrája
J Kerek kábel bevezetése (min. átmérő
10 mm - 4x 1,5 mm
2
)
HKF 200 E méret lap
C
D
E
F
G
H
I
J
30
530
615
180
225
9
120°
3x120°
250
A
B
X
XX
X Legkisebb bevezetési átmérő 180
mm
XX Forgási átmérő 200 mm
151HU