EasyManua.ls Logo

Kärcher HKF 200 E - Page 165

Kärcher HKF 200 E
Print Icon
To Next Page IconTo Next Page
To Next Page IconTo Next Page
To Previous Page IconTo Previous Page
To Previous Page IconTo Previous Page
Loading...
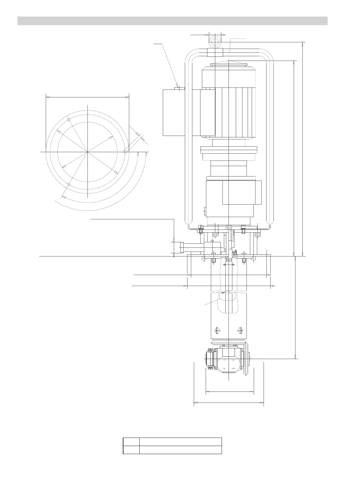
- 7
A Závěsný třmen (objednací č. 4.034-
126)
B Standardní délka 500 mm
CPředepsaný směr otáčení
DPrůměr příruby 250 mm
EPrůměr roztečné kružnice 225 mm
F Zóna 0/20, kategorie 1
G Zóna 1, kategorie 2 popř. 3
H Tlaková přípojka M22x1,5
I Uspořádání otvorů upevňovací příruby
J Kabelový přívod kulatým kabelem (min.
průměr 10 mm - 4x 1,5 mm
2
)
Rozměrový výkres HKF 200 ET
C
D
E
F
G
H
I
J
30
530
615
180
225
9
120°
3x120°
250
A
B
X
XX
X Minimální průměr přívodu 140 mm
XX Průměr otáčení 142 mm
165CS