EasyManua.ls Logo

Kärcher HKF 200 E - Dimension Sheet HKF 200 E; Dimensional Drawings and Labels

Kärcher HKF 200 E
Print Icon
To Next Page IconTo Next Page
To Next Page IconTo Next Page
To Previous Page IconTo Previous Page
To Previous Page IconTo Previous Page
Loading...
- 6
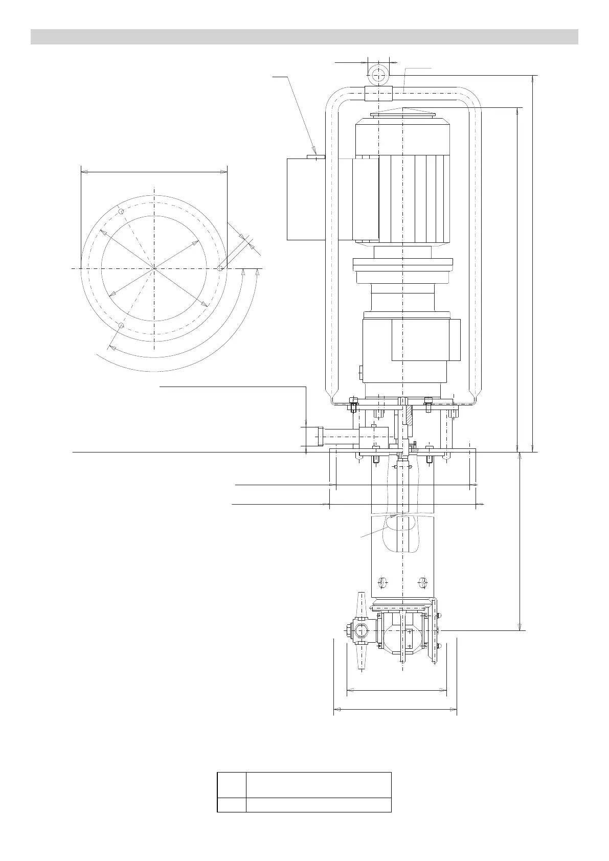
A Hanging bow (order no. 4.034-126)
B Standard length 800 mm, special edi-
tion 300-1500 mm
C Prescribed rotation direction
D Flange diameter 250 mm
E Hole circle diameter 225 mm
F Zone 0/20, category 1
G Zone 1, category 2 or 3
H Pressure connection M22x1.5
I Hole layout of the mounting flange
J Cable input round cable (min. diameter
10 mm - 4x 1,5 mm
2
)
Dimension sheet HKF 200 E
C
D
E
F
G
H
I
J
30
530
615
180
225
9
120°
3x120°
250
A
B
X
XX
X Minimum insertion diameter
180 mm
XX Rotation diameter 200 mm
21EN