EasyManua.ls Logo

Kärcher HKF 200 E - Page 34

Kärcher HKF 200 E
Print Icon
To Next Page IconTo Next Page
To Next Page IconTo Next Page
To Previous Page IconTo Previous Page
To Previous Page IconTo Previous Page
Loading...
- 6
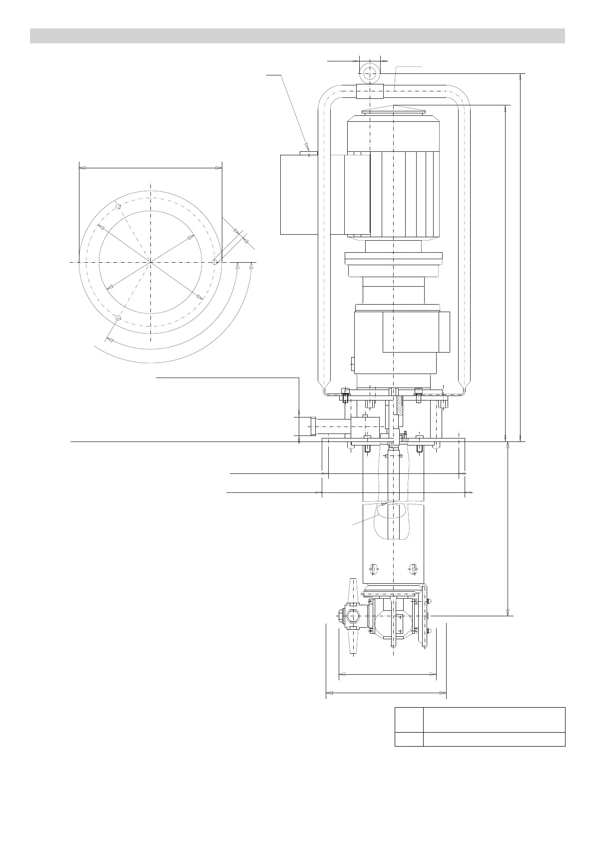
A Etrier de suspension (n° de commande
4.034-126)
B Longueur standard 800 mm, exécution
spéciale 300-1500 mm
C Sens de rotation prescrit
D Diamètre de bride 250 mm
E Diamètre de trou d'axe 225 mm
F Zone 0/20, catégorie 1
G Zone 1, catégorie 2 ou 3
H Raccord de tubulure de refoulement
M22x1,5
I Gabarit de bride de fixation
J Introduction du câble rond (diamètre
min. 10 mm - 4x 1,5 mm
2
)
Fiche de cotes HKF 200 E
C
D
E
F
G
H
I
J
30
530
615
180
225
9
120°
3x120°
250
A
B
X
XX
X Diamètre d'introduction minimum
180 mm
XX Diamètre de rotation 200 mm
34 FR