EasyManua.ls Logo

Kärcher HKF 200 E - Page 48

Kärcher HKF 200 E
Print Icon
To Next Page IconTo Next Page
To Next Page IconTo Next Page
To Previous Page IconTo Previous Page
To Previous Page IconTo Previous Page
Loading...
- 7
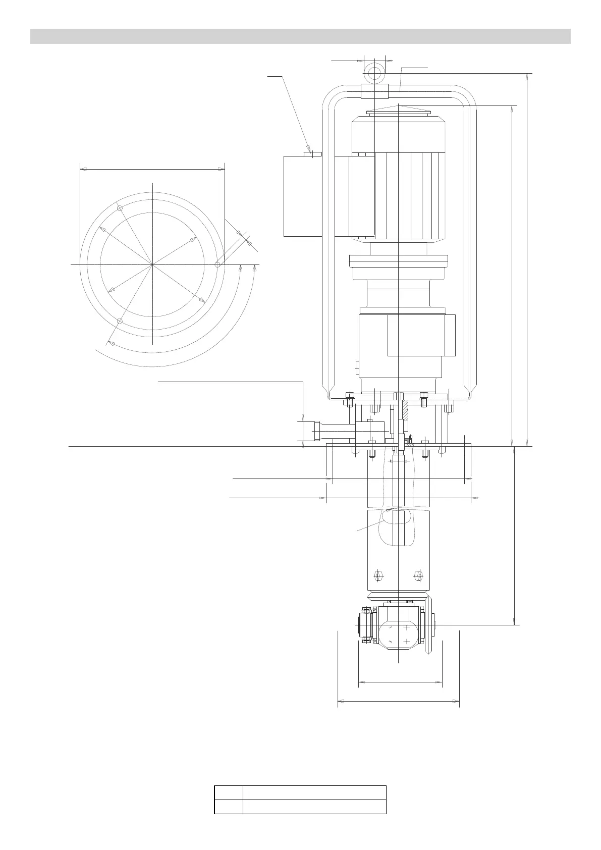
A Staffa di aggancio (Cod. d’ordin. 4.034-
126)
B Lunghezza standard 500 mm
C Senso di rotazione prescritto
D Diametro flangia 250 mm
E Diametro circonferenza di giacitura dei
fori 225 mm
F Zone 0/20, categoria 1
G Zona 1, categoria 2 o 3
H Allacciamento pressione M22x1,5
I Schema dei fori della flangia di fissag-
gio
J Entrata del cavo rotondo (diametro min.
10 mm - 4x 1,5 mm
2
)
Disegno dimensionale HKF 200 ET
C
D
E
F
G
H
I
J
30
530
615
180
225
9
120°
3x120°
250
A
B
X
XX
X Diametro min. d'entrata 140 mm
XX Diametro di rotazione 142 mm
48 IT