EasyManua.ls Logo

Kärcher HKF 200 E - Page 61

Kärcher HKF 200 E
Print Icon
To Next Page IconTo Next Page
To Next Page IconTo Next Page
To Previous Page IconTo Previous Page
To Previous Page IconTo Previous Page
Loading...
- 7
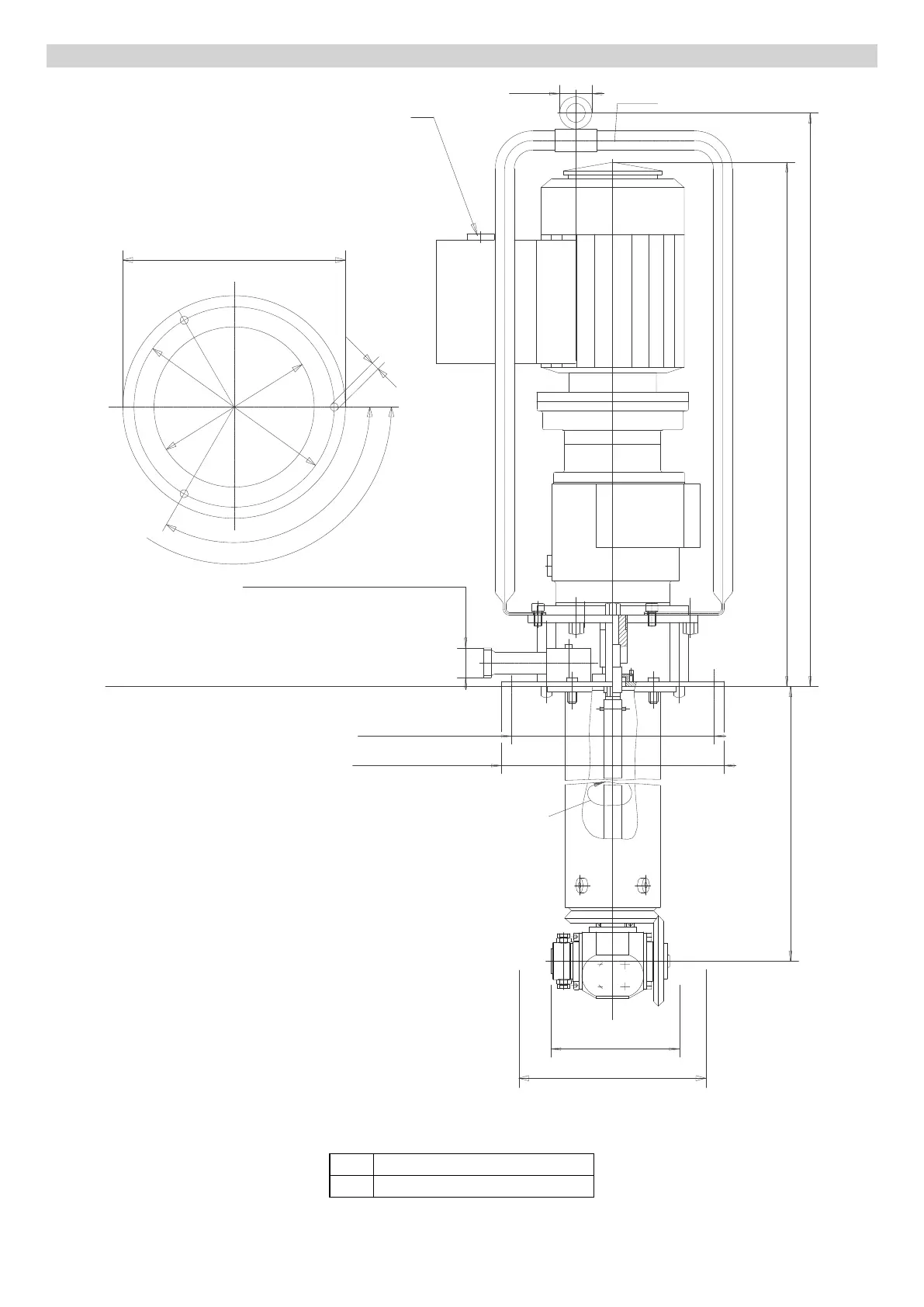
A Ophangbeugel (bestelnr. 4.034-126)
B Standaardlengte 500 mm
C Voorgeschreven draairichting
D Flensdiameter 250 mm
E Gatdiameter 225 mm
F Zone 0/20, categorie 1
G Zone 1, categorie 2 resp. 3
H Drukaansluiting M22x1,5
I Gatbeeld van de bevestigingsflens
J Kabelinvoering ronde kabel (min. dia-
meter 10 mm - 4x 1,5 mm
2
)
Maatblad HKF 200 ET
C
D
E
F
G
H
I
J
30
530
615
180
225
9
120°
3x120°
250
A
B
X
XX
X Min. invoerdiameter 140 mm
XX Rotatiediameter 142 mm
61NL