EasyManua.ls Logo

Kärcher HKF 200 E - Page 73

Kärcher HKF 200 E
Print Icon
To Next Page IconTo Next Page
To Next Page IconTo Next Page
To Previous Page IconTo Previous Page
To Previous Page IconTo Previous Page
Loading...
- 6
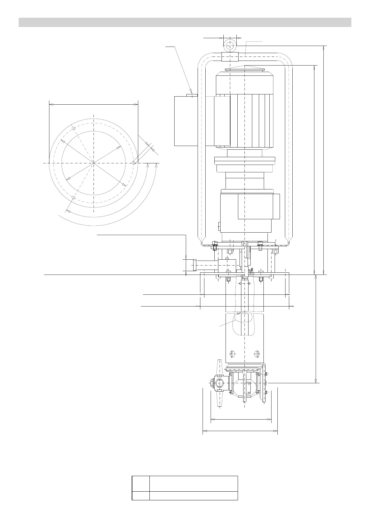
A Estribo de colgar (ref. 4.034-126)
B Longitud estándar 800 mm, modelo es-
pecial 300-1500 mm
C Dirección de giro prescrito
D Diámetro de brida 250 mm
E Diámetro de círculo de orificios 225 mm
F Zona 0/20, categoría 1
G Zona 1, categoría 2 ó 3
H Conexión de presión M22x1,5
I Imagen de orificios de la brida de fija-
ción
J Inserción de cable cable redondo (diá-
metro mín. 10 mm - 4x 1,5 mm
2
)
Hoja de dimensiones HKF 200 E
C
D
E
F
G
H
I
J
30
530
615
180
225
9
120°
3x120°
250
A
B
X
XX
X Diámetro mín. de inserción 180
mm
XX Diámetro de rotación 200 mm
73ES