EasyManua.ls Logo

Kärcher HKF 200 E - Page 86

Kärcher HKF 200 E
Print Icon
To Next Page IconTo Next Page
To Next Page IconTo Next Page
To Previous Page IconTo Previous Page
To Previous Page IconTo Previous Page
Loading...
- 6
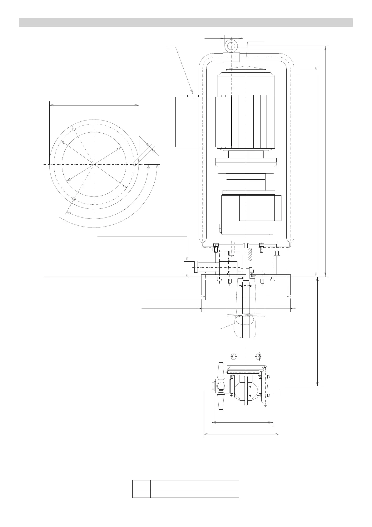
A Estribo de suspensão (N.º de enco-
menda: 4.034-126)
B Comprimento padrão 800 mm, versão
especial 300-1500 mm
C Sentido de rotação prescrito
D Diâmetro do flange 250 mm
E Diâmetro do círculo 225 mm
F Zona 0/20, categoria 1
G Zona 1, categoria 2 resp., 3
H Ligação de pressão M22x1,5
I Furação do flange de fixação
J Inserção do cabo redondo (diâmetro
mín. 10 mm - 4x 1,5 mm
2
)
Folha de dimensões HKF 200 E
C
D
E
F
G
H
I
J
30
530
615
180
225
9
120°
3x120°
250
A
B
X
XX
X Diâmetro mín. de inserção 180 mm
XX Diâmetro de rotação 200 mm
86 PT