EasyManua.ls Logo

Kärcher HKF 200 E - Page 99

Kärcher HKF 200 E
Print Icon
To Next Page IconTo Next Page
To Next Page IconTo Next Page
To Previous Page IconTo Previous Page
To Previous Page IconTo Previous Page
Loading...
- 6
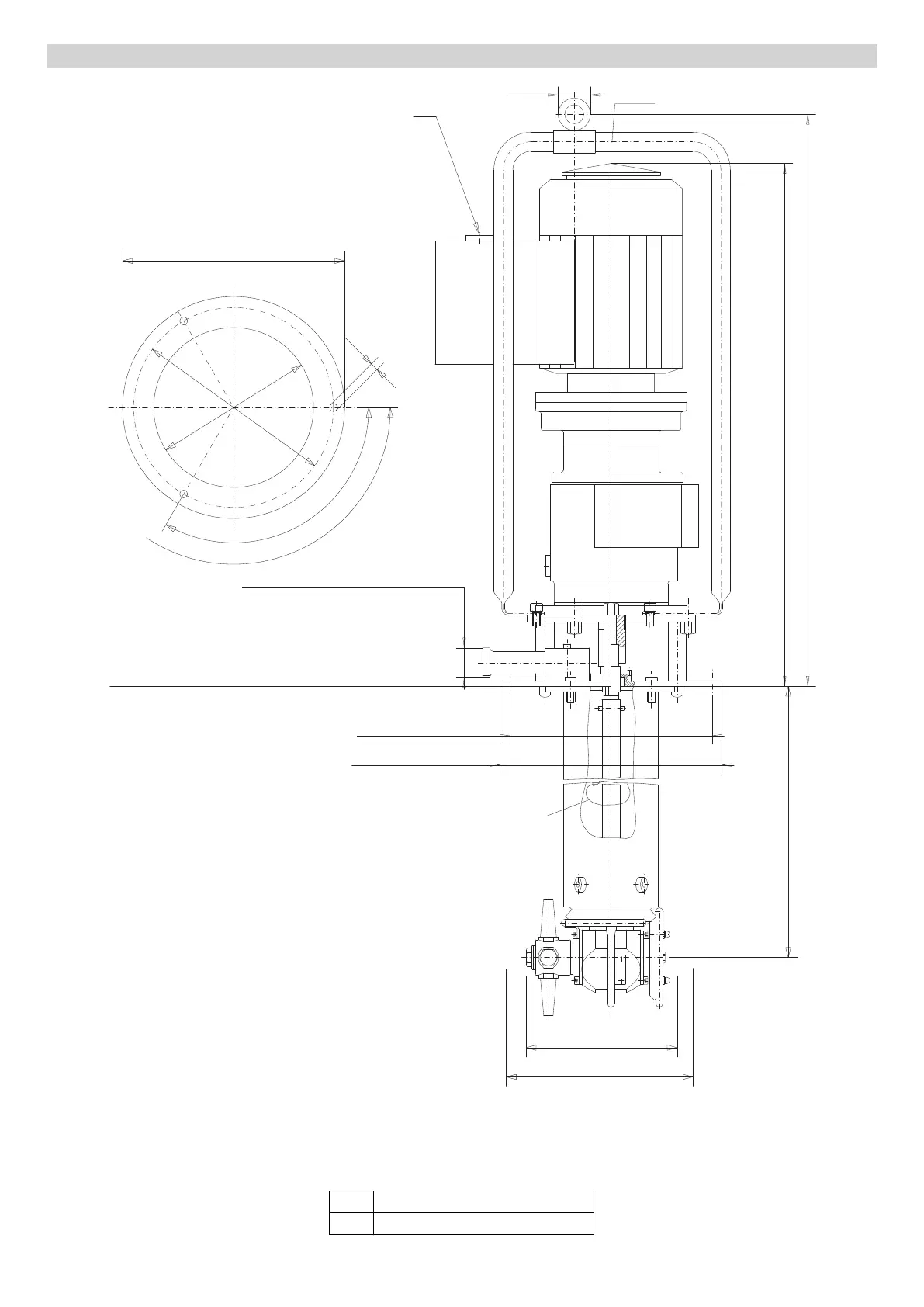
A Opphengningsbøyle (Bestill.-nr. 4.034-
126)
B Standardlengde 800 mm, spesialutfø-
relse 300-1500 mm
C Foreskrevet dreieretning
D Flensdiameter 250 mm
E Hullsirkeldiameter 225 mm
F Sone 0/20, kategori 1
G Sone 1, kategori 2 henholdsvis 3
H Trykkforbindelse M22x1,5
I Hullsjablon av påspenningsflensen
J Kabelinnføring rundkabel (min. diame-
ter 10 mm - 4x 1,5 mm
2
)
Måleblad HKF 200 E
C
D
E
F
G
H
I
J
30
530
615
180
225
9
120°
3x120°
250
A
B
X
XX
X Minste innføringsdiameter 180 mm
XX Rotasjonsdiameter 200 mm
99NO