EasyManua.ls Logo

Keyscan NETCOM6P - Page 13

Default Icon
24 pages
Print Icon
To Next Page IconTo Next Page
To Next Page IconTo Next Page
To Previous Page IconTo Previous Page
To Previous Page IconTo Previous Page
Loading...
NETCOM6P/CIM - RN Installation Guide
13
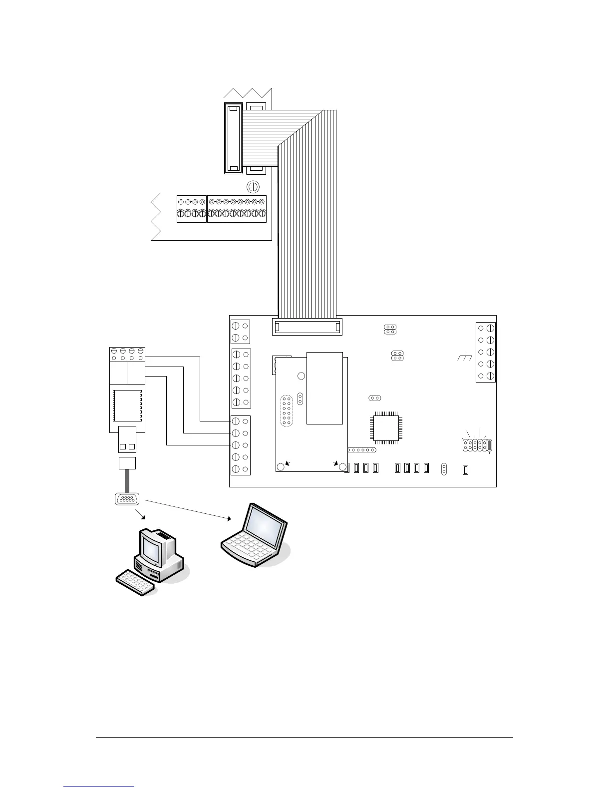
Figure 7 - Optional USB-SER Serial Programming Connections Powered via H2 on
Control Board
PC or laptop with Keyscan
NETCOM Program Tool Utility.
Use 3 loose
RS-232 wires.
Green
Red
Black
Current Draw : CIM 150 mA +
NETCOMP 140 mA = 290 mA
CIM 0
TD1
RD1
TD2
RD2
GND
RTS1
CTS1
GND
RTS2
CTS2
B3 B2 B1 B0
Diag
J2
RESET
-
CAN2
+
EGND
-
CAN1
+
GND
V +
(+12V)
SCKT1
Tx Data
PC106x
J1
J7
J8
J6
J5
CAN2
CAN1
Rx Data
1 2 1 2 1 2 1 2
COM COM
CAN
CAN
J3
J4
J9
J12
Power
Good
Fault
COM2
HDR1
J10
J11
RJ45
Terminal
Jack
RESET
NETCOMP
Standoffs
To program
NETCOM2P/6P
jumper ON J12
KI-00467E-04-13
COM1
BRN
WHT
GRN
WHT
+ TX - + RX -
485 OUT 485 IN
Connect ribbon cable from
HDR1 on CIM 0 to H2 on
control board. Control board
requires power from DPS-15.
Place a jumper on J12 to set
the CIM for Program mode.
After programming remove
the jumper from J12 to set the
CIM on Run mode. Ensure
CIM 0 has a jumper on J4.
Control Board
(PC 109x)
Common AUX Inputs - E
24
2322
2120191817
H1H2