EasyManua.ls Logo

KING MAU - Page 5

KING MAU
21 pages
Print Icon
To Next Page IconTo Next Page
To Next Page IconTo Next Page
To Previous Page IconTo Previous Page
To Previous Page IconTo Previous Page
Loading...
MAU Installation Manual
Page
5
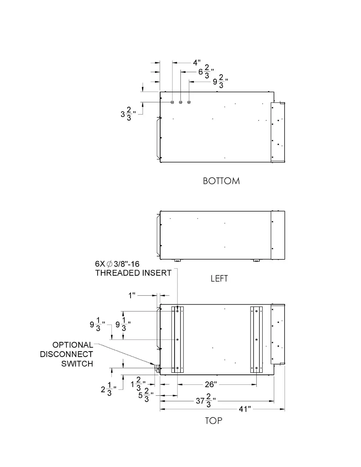
MAU DIMENSIONS PAGE 1