EasyManua.ls Logo

KitchenAid KRSC703HBS - Page 36

KitchenAid KRSC703HBS
65 pages
Print Icon
To Next Page IconTo Next Page
To Next Page IconTo Next Page
To Previous Page IconTo Previous Page
To Previous Page IconTo Previous Page
Loading...
36
REMARQUES :
Ce réfrigérateur est conçu pour être utilisé dans un endroit
la température est comprise entre un minimum de 55 °F
(13 °C) et un maximum de 110 °F (43 °C). La plage de
température ambiante idéale pour un rendement optimal est
comprise entre 60 °F (15 °C) et 90 °F (32 °C). Respecter cette
plage de température permet aussi de réduire la
consommation d’électricité et d’optimiser l’efficacité du
refroidissement. Il est recommandé de ne pas installer le
réfrigérateur près d’une source de chaleur comme un four ou
un radiateur.
La largeur de la cavité d’encastrement doit être d’au moins 36
po (91,44 cm) pour l’installation du produit. Cependant, si le
produit est placé contre une paroi avec prolongement et si on
veut pouvoir retirer les poêles à croustiller, il convient d’élargir
la cavité de 18 po (45,72 cm). On recommande donc une
cavité d’encastrement d’une largeur totale de 54 po
(137,16 cm).
Pour une installation côte à côte à profondeur de
comptoir :
REMARQUES :
Le réfrigérateur peut être installé dans un encastrement, à
l’extrémité des armoires ou en position autonome.
Si vous installez le réfrigérateur pour qu’il soit en affleurement
avec les armoires inférieures, il faut enlever toutes les
moulures et plinthes de l’arrière de l’ouverture d’encastrement.
Laisser un espace de 1 po (2,54 cm) derrière le réfrigérateur.
L’emplacement doit permettre l’ouverture complète des portes.
Voir la section « Dimensions du produit ».
Ce réfrigérateur est conçu pour être utilisé dans un endroit
la température est comprise entre un minimum de 55 °F
(13 °C) et un maximum de 110 °F (43 °C). La plage de
température ambiante idéale pour un rendement optimal est
comprise entre 60 °F (15 °C) et 90 °F (32 °C). Respecter cette
plage de température permet aussi de réduire la
consommation d’électricité et d’optimiser l’efficacité du
refroidissement. Il est recommandé de ne pas installer le
réfrigérateur près d’une source de chaleur comme un four ou
un radiateur.
Le plancher doit supporter le poids du réfrigérateur (plus de
600 lb [272 kg]) et de son contenu.
Outils requis :
Rassembler les outils et pièces nécessaires avant d’entreprendre
l’installation. Lire et observer les instructions fournies avec chacun
des outils de la liste ci-dessous.
Perceuse sans fil
Tourne-écrou et foret de
1/4 po
Tournevis à tête plate
Deux clés à molette
Clé à molette de 5/16 po
Clés à fourche de 7/16 po
et 1/2 po
Clés à douille de 3/8 po et
1/2 po
Pièces nécessaires :
Votre marchand de réfrigérateurs propose une trousse avec un
robinet d’arrêt à étrier de 1/4 po (6,35 mm), un raccord et un
tube en cuivre.
L’utilisateur peut aussi acheter une canalisation de cuivre de
1/4 po (6,35 mm) avec robinet d’arrêt et un raccord à
compression de 1/4 po (6,35 mm).
Selon les connexions de la canalisation d’eau, on peut aussi
avoir besoin d’un écrou de
1/4 po (6,35 mm) et d’une virole de 1/4 po (6,35 mm).
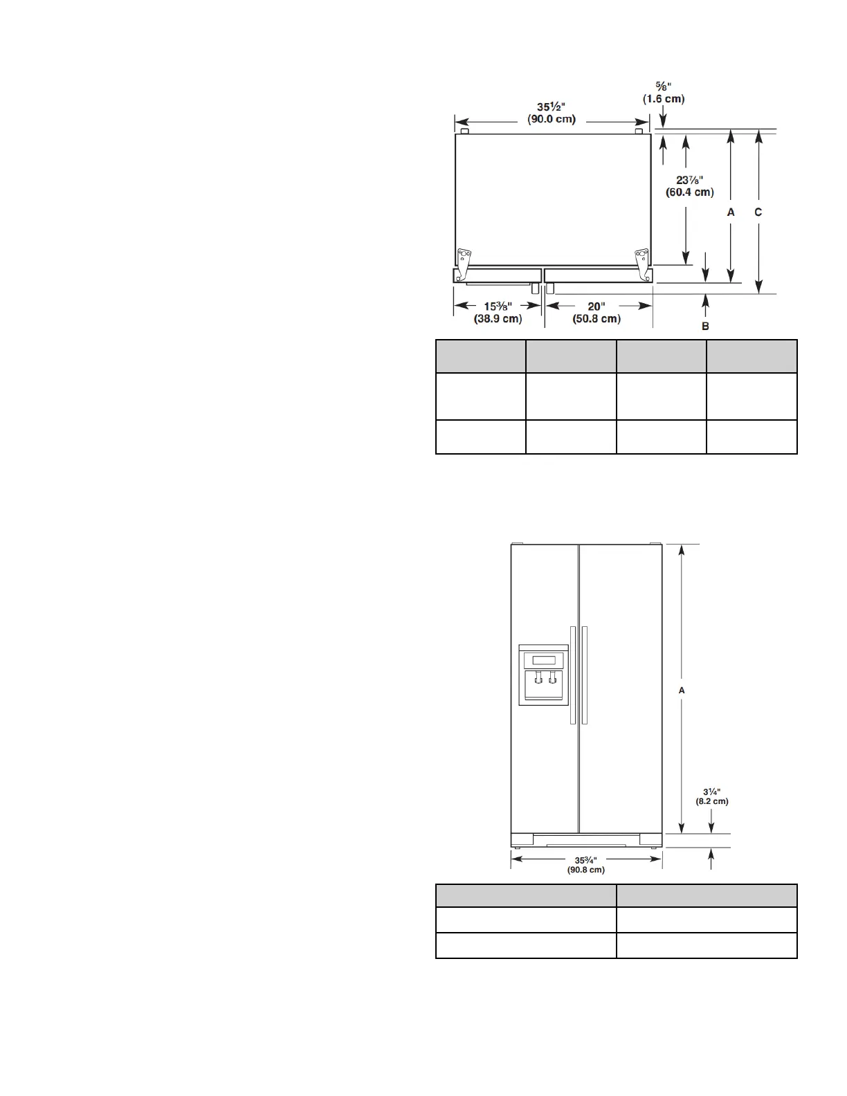
Dimensions du produit Vue de dessus
Style de
porte
Profondeur A Profondeur B Profondeur C
Plate 27
1
/
2
po
(69,9 cm)
Maximum de
2
5
/
8
po
(6,7 cm)*
Maximum de
30 po
(76,2 cm)*
Incurvée 28
5
/
8
po
(72,7 cm)
2
5
/
8
po
(6,7 cm)
31
1
/
8
po
(79,1 cm)
Les dimensions peuvent varier en fonction du type de poignée de
porte.
La profondeur pour utilisation de la poignée la plus profonde est
indiquée.
Dimensions du produit Vue avant
Taille du modèle Hauteur A
69 po 65
3
/
4
po (167,0 cm)
72 po 68
1
/
8
po (173,0 cm)

Table of Contents

Related product manuals