EasyManua.ls Logo

KitchenAid KSCS25INSS01 - Page 12

KitchenAid KSCS25INSS01
28 pages
Print Icon
To Next Page IconTo Next Page
To Next Page IconTo Next Page
To Previous Page IconTo Previous Page
To Previous Page IconTo Previous Page
Loading...
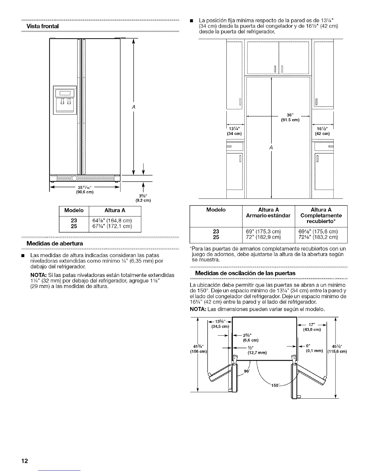
Vista frontal
(90,6 cm)
3%"
(9.2 cm)
Modelo Altura A
23 647/8'' (164,8 cm)
25 673/4'' (172,1 cm)
Medidas de abertura
Las medidas de altura indicadas consideran las patas
niveladoras extendidas como minimo 1A"(6,35 mm) por
debajo del refrigerador.
NOTA: Si las patas niveladoras estan totalmente extendidas
11/4"(32 mm) por debajo del refrigerador, agregue 11/8"
(29 mm) alas medidas de altura.
La posici6n fija m(nima respecto de la pared es de 131/4"
(34 cm) desde la puerta del congelador y de 161/2'' (42 cm)
desde la puerta del refrigerador.
36"
(91.5 cm)
(34 cm)
= A
(42 cm)
Modelo Altura A Altura A
Armario estandar Completamente
recubierto*
23 69" (175,3 cm) 691/s'' (175,6 cm)
25 72" (182,9 cm) 721/8'' (183,2 cm)
*Para las puertas de armarios completamente recubiertos con un
juego de adornos, debe ajustarse la altura de la abertura segQn
se muestra.
Medidas de oscilacibn de las puertas
La ubicaci6n debe permitir que las puertas se abran a un minimo
de 150 °. Deje un espacio minimo de 131/4'' (34 cm) entre la pared y
el lado del congelador del refrigerador. Deje un espacio m(nimo de
161A" (42 cm) entre la pared y el lado del refrigerador.
NOTA: Las dimensiones pueden variar segQn el modelo.
T
41%"
(10] cm)
2%"
(6,6cm)
1/2"
(12,7 ram)
12