EasyManua.ls Logo

Kitchencraft 3210 - INSTALLATION OF DEVICE; Product Placement Guidelines; Chimney and Glass Assembly

Kitchencraft 3210
8 pages
Print Icon
To Next Page IconTo Next Page
To Next Page IconTo Next Page
To Previous Page IconTo Previous Page
To Previous Page IconTo Previous Page
Loading...
-5-
Min.65 cm
Min.65 cm
Min.75 cm
Figure 1
INSTALLATION OF DEVICE:
* Check whether there is any deformation in your device or not.
* Transportation failures should be reported to transportation responsible
immediately.
* Seen mistakes should also be informed to the seller.
* Do not allow children to play with packaging materials!!!
ASSEMBLY OF HOOK SHEET TO THE CHIMNEY HOOD:
In order to hang product onto the wall, there are 2 pieces of
hook sheets in the form of (L). These sheets are provided
together with screw set for convenience of package. Before
hanging the product, screw these sheets to M5 hammering
nuts, which are available on the cabinet, with M5 x 40 bolts.
Picture 2
Picture 2
ASSEMBLY OF PLASTIC CHIMNEY TO THE CHIMNEY
HOOD: Fix plastic chimney to motor connection sheet with
3,5 x 9,5 screw. Picture 3
Picture 3
Picture 4
Fastening Tempered Glass: Place tempered glass, which
is provided with your chimney hood, so as to come onto the
top of body of chimney hood. Fasten glass to the body by
means of screws, which are provided with your aspirator,
from 4 pieces of bores on the body of glass and chimney
hood. Picture 4
-12-
If the product does not work:
Before you contact the technical service:
Make sure that the product is plugged in and the electric fuse of the electric wiring is
running. Do not take any action that will damage the product. Before you contact with
technical service, check your cooker hood according to Table 1. If the problem goes
on, contact the seller or the most authorised service.
Service and Spare Parts:
You can supply spare parts of your product from the seller of your authorised service.
There is an authorised service centers list in the package of your product. In order to
request spare parts when you contact seller or authorised service, please tell them
model name of your product that you can see on the product's label. You will be able
to see the product's label when you remove Aluminum Cassette Filter.
Table 2
X
X
X
X
X
X
X
X X
X
Check the electric connection
(Voltage of the electric network should be between 220-
240V, cooker hood should be connected to grounded
plug.)
Check motor switch
(Motor switch should be at on position)
Check motor switch
(Motor switch should be at on position)
Check the lamp switch
(Lamp switch should be at on position)
Check the aluminum filter
(Aluminum Cassette Filter should be washed once a
month at normal conditions.)
Check the lamps
(Lamps should be firm.)
Check the Carbon Filter
(Carbon filter should be replaced with a new one each 2-
3 months at the models with Carbon Filter at normal
conditions)
Cooker-hood does not work
Illumination Lamp does not work
Cooker-hoods air suction is weak
Cooker-hood does not direct air out
(at places without chimney)
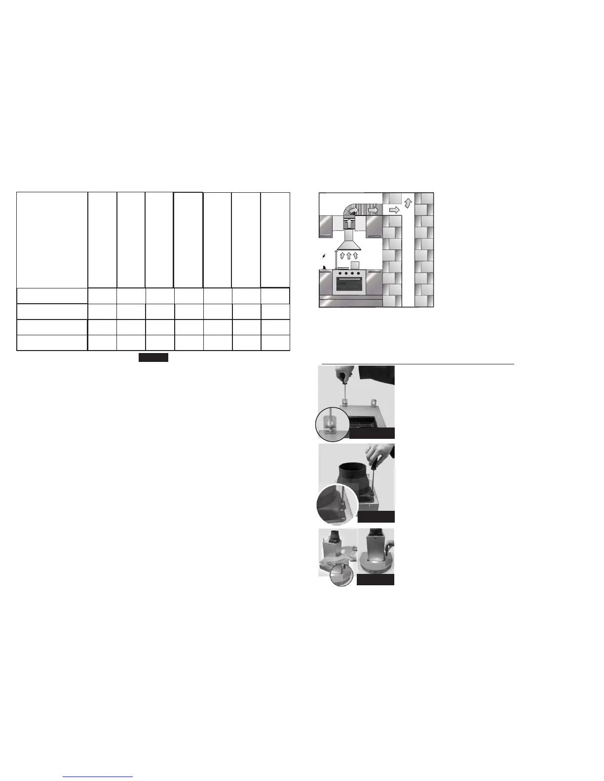
Place of the Product:
When montage of the cooker hood is completed,
distance of at least 65 cm should be between the
product and electrical hobs or distance of at least
75cm should be between the product and hobs
operating with gas or other fuel.Figure 1