EasyManua.ls Logo

KORTING HG 675 X - Fixing the Hob to the Worktop

KORTING HG 675 X
32 pages
Print Icon
To Next Page IconTo Next Page
To Next Page IconTo Next Page
To Previous Page IconTo Previous Page
To Previous Page IconTo Previous Page
Loading...
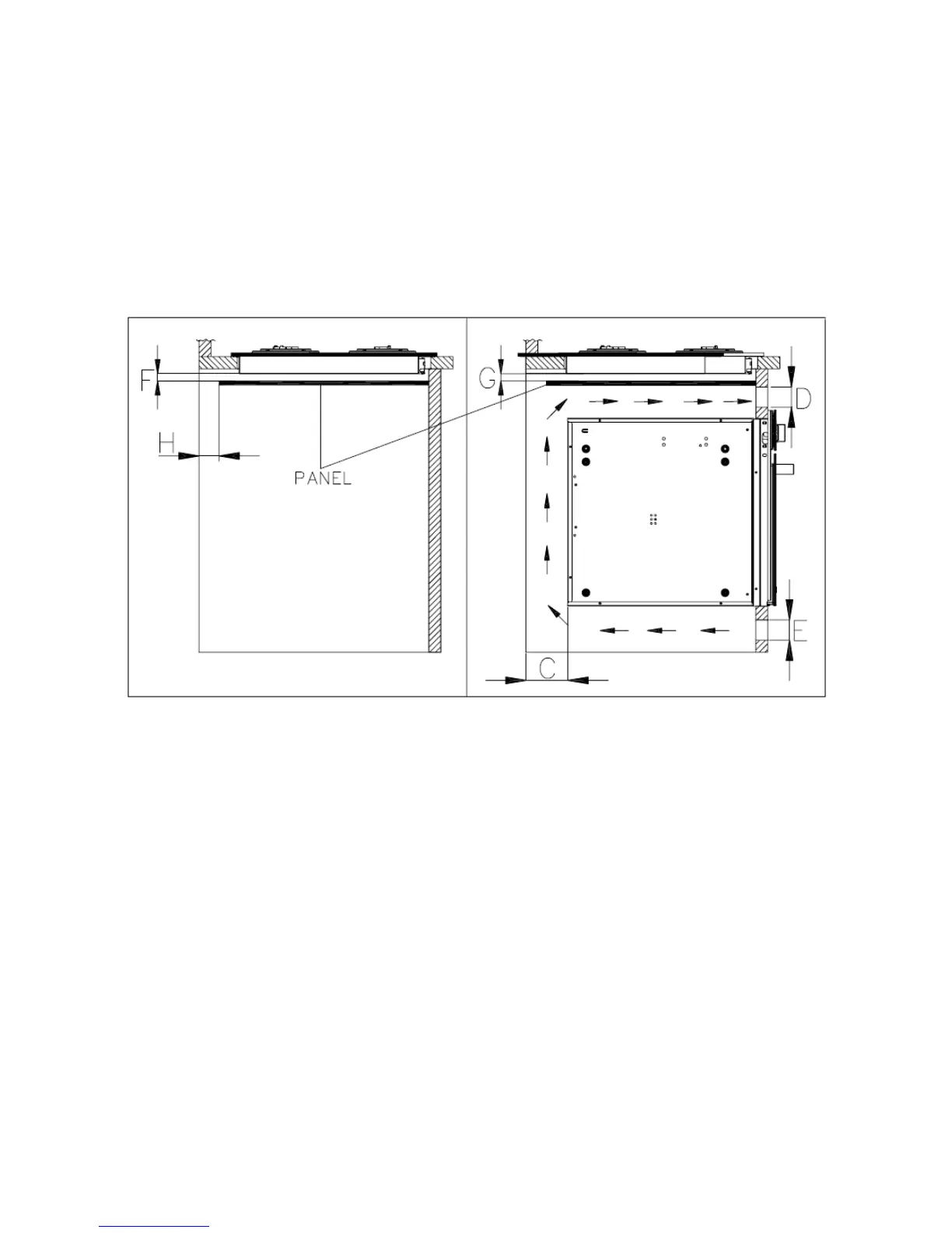
Important:
If the hob is installed and there is no oven below it, you need to put a separator panel between the bottom of
the hob and the top of the furniture below, which should be positioned at a minimum distance of 10 mm
below the hob.
If the hob is installed over an oven, place a separator panel at a minimum distance of 15 mm below the hob,
and follow the oven manufacturers instructions, ensuring sufficient aeration as specified in figure 2 below.
In any of the above cases, the electrical connection of the two appliances must be carried out separately,
both for electrical purpose and also to facilitate removal.
It is advisable to use an oven equipped with an internal forced cooling system.
WITHOUT OVEN BELOW WITH OVEN BELOW
F = 10mm (min.) G = 15mm (min.) E = 180cm²
H = 50mm (min.) D = 120cm² C = 30mm (min.)
Figure 2.
Fixing the hob to the worktop.
To fix the hob in the housing, proceed as follows, see figure 3 below:
:
Position the special gasket supplied (C) along the outer perimeter of the worktop, following the scheme
shown in figure 1 above, so that the ends of the gasket meet exactly without overlapping.
:
Position the hob into the worktop, ensuring that it is placed exactly in the centre.
:
Fix the hob onto the worktop using the special fixing brackets (A) and fixing screws (B) supplied with the
appliance, as shown in figure 3 below.
Important: the correct installation of the sealing gasket ensures complete protection against infiltration of
liquids.
19

Related product manuals