EasyManua.ls Logo

KORTING HG 675 X - Page 7

KORTING HG 675 X
32 pages
Print Icon
To Next Page IconTo Next Page
To Next Page IconTo Next Page
To Previous Page IconTo Previous Page
To Previous Page IconTo Previous Page
Loading...
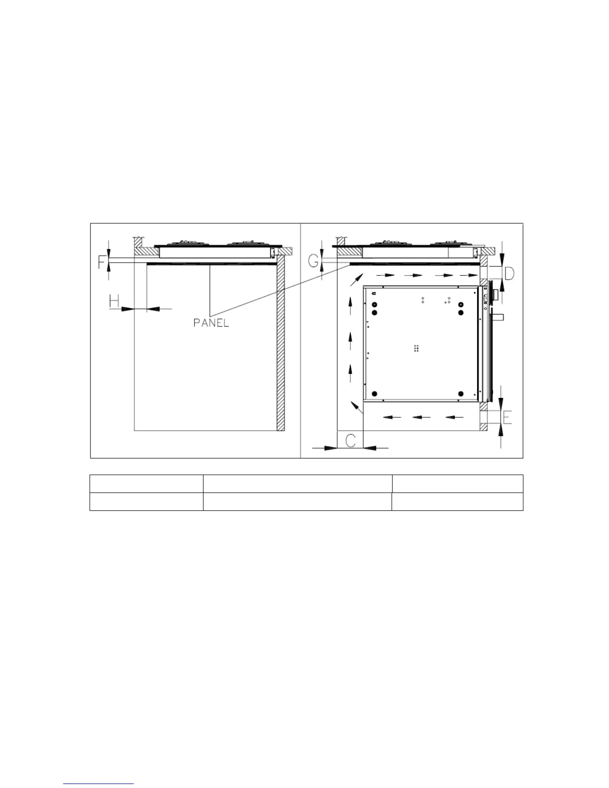
ȼɧɢɦɚɧɢɟ:
ȼ ɫɥɭɱɚɟ, ɟɫɥɢ ɩɨɜɟɪɯɧɨɫɬɶ ɭɫɬɚɧɚɜɥɢɜɚɟɬɫɹ ɧɚɞ ɤɭɯɨɧɧɨɣ ɬɭɦɛɨɣ, ɜ ɤɨɬɨɪɨɣ ɧɟɬ ɞɭɯɨɜɤɢ, ɦɟɠɞɭ
ɩɨɜɟɪɯɧɨɫɬɶɸ ɢ ɧɚɯɨɞɹɳɟɣɫɹ ɩɨɞ ɧɟɣ ɬɭɦɛɨɣ ɧɟɨɛɯɨɞɢɦɨ ɭɫɬɚɧɨɜɢɬɶ ɪɚɡɞɟɥɢɬɟɥɶɧɭɸ ɩɥɚɧɤɭ, ɧɚ
ɦɢɧɢɦɚɥɶɧɨɦ
ɪɚɫɫɬɨɹɧɢɢ ɜ 10 ɦɦ ɨɬ ɩɨɜɟɪɯɧɨɫɬɢ.
ȼ ɫɥɭɱɚɟ, ɟɫɥɢ ɩɨɜɟɪɯɧɨɫɬɶ ɭɫɬɚɧɚɜɥɢɜɚɟɬɫɹ ɧɚɞ ɞɭɯɨɜɤɨɣ, ɪɚɡɦɟɫɬɢɬɟ ɪɚɡɞɟɥɢɬɟɥɶɧɭɸ ɩɥɚɧɤɭ ɩɨɞ
ɩɨɜɟɪɯɧɨɫɬɶɸ, ɧɚ ɦɢɧɢɦɚɥɶɧɨɦ ɪɚɫɫɬɨɹɧɢɢ ɜ 15 ɦɦ, ɚ ɬɚɤɠɟ ɫɥɟɞɭɣɬɟ ɭɤɚɡɚɧɢɹɦ ɩɪɨɢɡɜɨɞɢɬɟɥɹ ɩɨ
ɭɫɬɚɧɨɜɤɟ ɞɭɯɨɜɤɢ
, ɨɛɟɫɩɟɱɢɜ ɩɪɢ ɷɬɨɦ ɞɨɫɬɚɬɨɱɧɭɸ ɜɟɧɬɢɥɹɰɭɸ ɜɨɡɞɭɯɚ, ɤɚɤ ɩɨɤɚɡɚɧɨ ɧɚ ɪɢɫ. 2.
Ⱦɥɹ ɨɛɨɢɯ ɜɵɲɟɭɤɚɡɚɧɧɵɯ ɫɥɭɱɚɟɜ, ɩɨɞɤɥɸɱɟɧɢɟ ɤ ɷɥɟɤɬɪɨɫɟɬɢ ɞɨɥɠɧɨ ɛɵɬɶ ɩɪɨɢɡɜɟɞɟɧɨ ɨɬɞɟɥɶɧɨ
ɞɥɹ ɤɚɠɞɨɝɨ ɩɪɢɛɨɪɚ, ɤɚɤ ɜ
ɰɟɥɹɯ ɛɟɡɨɩɚɫɧɨɫɬɢ, ɬɚɤ ɢ ɞɥɹ ɭɞɨɛɫɬɜɚ ɨɬɤɥɸɱɟɧɢɹ ɨɞɧɨɝɨ ɢɡ ɩɪɢɛɨɪɨɜ.
Ɋɟɤɨɦɟɧɞɭɟɬɫɹ ɭɫɬɚɧɚɜɥɢɜɚɬɶ ɞɭɯɨɜɤɭ ɫ ɫɢɫɬɟɦɨɣ ɩɪɢɧɭɞɢɬɟɥɶɧɨɣ ɜɟɧɬɢɥɹɰɢɢ.
ɍɋɌȺɇɈȼɄȺ ȻȿɁ ȾɍɏɈȼɄɂ ɍɋɌȺɇɈȼɄȺ ɇȺȾ ȾɍɏɈȼɄɈɃ
F = 10mm
(ɦɢɧ.)
G = 15mm
(ɦɢɧ.)
E = 180cm²
H = 50mm
(ɦɢɧ.)
D = 120cm² Ɋɚɡɞɟɥɢɬɟɥɶɧɚɹ ɩɥɚɧɤɚ C = 30mm
(ɦɢɧ.)
Ɋɢɫ. 2.
Ʉɪɟɩɥɟɧɢɟ ɩɨɜɟɪɯɧɨɫɬɢ ɤ ɫɬɨɥɟɲɧɢɰɟ.
Ⱦɥɹ ɤɪɟɩɥɟɧɢɹ ɩɨɜɟɪɯɧɨɫɬɢ ɤ ɫɬɨɥɟɲɧɢɰɟ, ɫɥɟɞɭɣɬɟ ɧɢɠɟɩɪɢɜɟɞɟɧɧɵɦ ɭɤɚɡɚɧɢɹɦ, ɫɦ. ɪɢɫ. 3 ɧɢɠɟ:
- Ɋɚɫɩɨɥɨɠɢɬɟ ɫɩɟɰɢɚɥɶɧɵɣ ɭɩɥɨɬɧɢɬɟɥɶ (C), ɢɦɟɸɳɢɣɫɹ ɜ ɤɨɦɩɥɟɤɬɚɰɢɢ, ɜɞɨ
ɥɶ ɜɧɟɲɧɟɝɨ ɩɟɪɢɦɟɬɪɚ
ɫɬɨɥɟɲɧɢɰɵ, ɫɦ. ɫɯɟɦɭ ɧɚ ɪɢɫ. 1 ɜɵɲɟ. Ʉɪɚɹ ɭɩɥɨɬɧɢɬɥɹ ɧɟ ɞɨɥɠɧɵ ɧɚɥɟɝɚɬɶ ɞɪɭɝ ɧɚ ɞɪɭɝɚ, ɢ ɞɨɥɠɧɵ
ɫɨɣɬɢɫɶ ɛɟɡ ɪɚɡɪɵɜɨɜ.
- Ɋɚɫɩɨɥɨɠɢɬɟ ɩɨɜɟɪɯɧɨɫɬɶ ɜ ɩɪɨɟɦ, ɬɚɤɢɦ ɨɛɪɚɡɨɦ, ɱɬɨɛɵ ɨɧɚ
ɧɚɯɨɞɢɥɚɫɶ ɪɨɜɧɨ ɩɨ ɰɟɧɬɪɭ.
- Ɂɚɤɪɟɩɢɬɟ ɩɨɜɟɪɯɧɨɫɬɶ ɤ ɫɬɨɥɟɲɧɢɰɟ, ɩɪɢ ɩɨɦɨɳɢ ɫɩɟɰɢɚɥɶɧɵɯ ɤɪɟɩɟɠɧɵɯ ɫɤɨɛ (A) ɢ ɲɭɪɭɩɨɜ (B),
ɢɦɟɸɳɢɯɫɹ ɜ ɤɨɦɩɥɟɤɬɚɰɢɢ. ɋɦ. ɪɢɫ. 3 ɧɢɠɟ.
ȼɧɢɦɚɧɢɟ: ɜɟɪɧɚɹ ɭɫɬɚɧɨɜɤɚ ɭɩɥɨɬɧɢɬɟɥɹ ɝɚɪɚɧɬɢɪɭɟɬ ɡɚɳɢɬ
ɭ ɨɬ ɩɨɩɚɞɚɧɢɹ ɠɢɞɤɨɫɬɢ ɩɨɞ ɜɚɪɨɱɧɭɸ
ɩɨɜɟɪɯɧɨɫɬɶ.
5

Related product manuals