EasyManua.ls Logo

KORTING Hob - Page 29

KORTING Hob
30 pages
Print Icon
To Next Page IconTo Next Page
To Next Page IconTo Next Page
To Previous Page IconTo Previous Page
To Previous Page IconTo Previous Page
Loading...
Установите варочную панель в отверстие в
шкафу. Убедитесь, что она выровнена по
центру.
Прикрепите варочную панель к шкафу с
помощью скоб (S), входящих в комплект
поставки (рис. 9).
Рис. 9
A) прокладка
Варианты установки
На базе шкафа с дверцей
При установке в шкаф соблюдайте все необходимые
меры предосторожности для предотвращения контакта
с корпусом варочной панели, который во время работы
сильно нагревается. Рекомендуемый способ
преодоления этой проблемы изображен на рис. 10.
Полка под варочной панелью должна быть съемной для
удобства монтажа и демонтажа прибора в случае
проведения работ по обслуживанию.
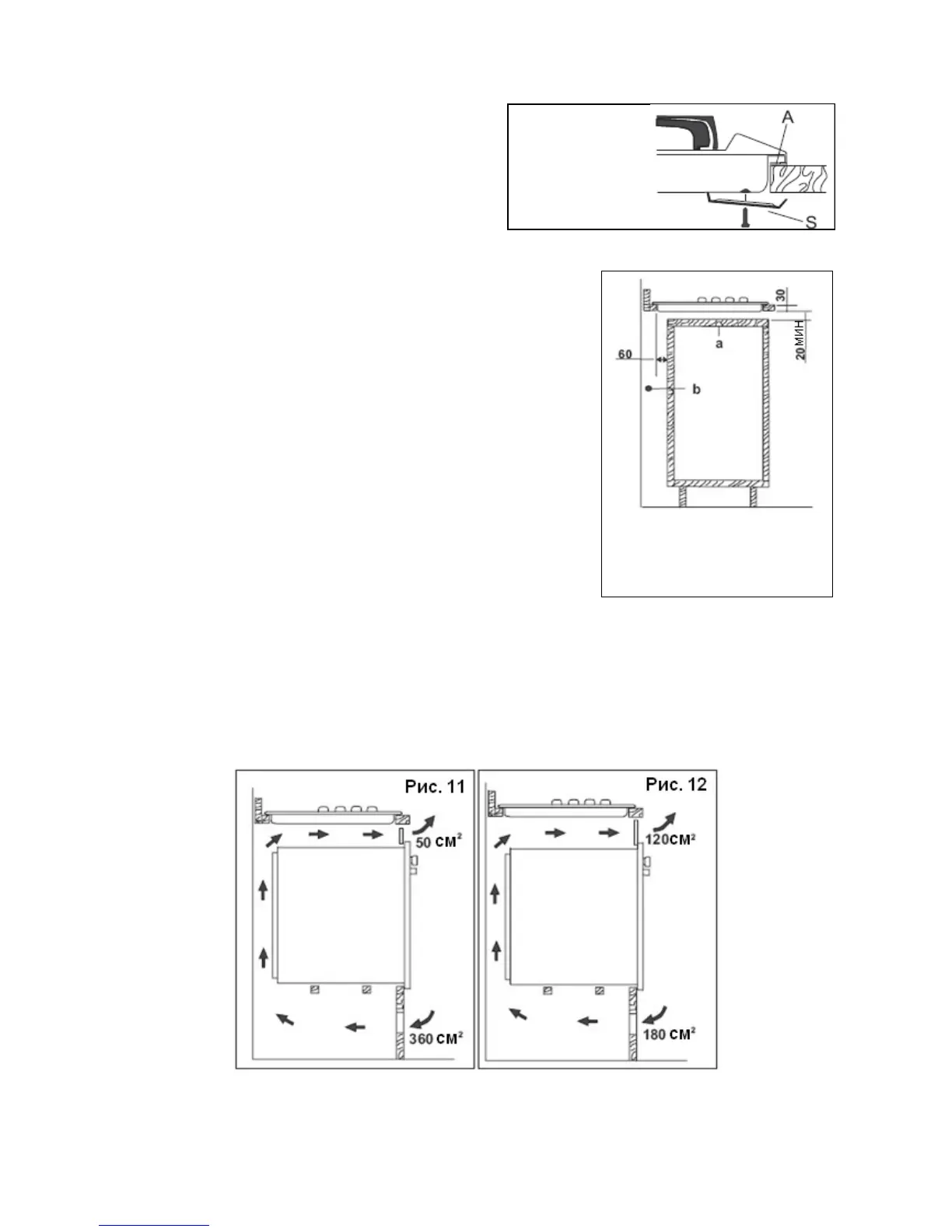
На базе шкафа с духовкой
Монтажное отверстие должно соответствовать
размерам, указанным на рисунке 8 и обладать опорами
для обеспечения достаточной циркуляции воздуха. На рисунках 11 и 12 изображены
возможные варианты для предотвращения перегрева.
Электрическое подключение варочной панели и духовки должно быть выполнено
раздельно в целях безопасности и возможности удаления духовки через переднюю
сторону шкафа.
Настенный шкаф или вытяжку разрешено устанавливать на высоте не менее 650 мм
над варочной панелью.
a) Съемная полка
b) Отверстие для
подключений
Рис. 10
29

Related product manuals