EasyManua.ls Logo

Kubota D782-E3 - Page 71

Kubota D782-E3
74 pages
Print Icon
To Next Page IconTo Next Page
To Next Page IconTo Next Page
To Previous Page IconTo Previous Page
To Previous Page IconTo Previous Page
Loading...
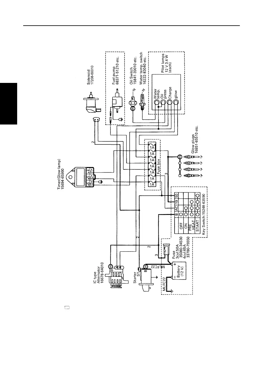
60 WIRING DIAGRAMS
ENGLISH
[D1005-E3, D1105-E3, D1105-TE3, D1305-E3, V1505-E3, V1505-TE3, D1005-E3BG, D1105-E3BG, V1505-E3BG]
EU standard (Energize to run)
The parts boxed in are reference, NOT equiped for standard engine spec.
Non marked wire dia. is 0.8~1.25 mm
2
.