EasyManua.ls Logo

Kubota D902-E3 - Page 73

Kubota D902-E3
74 pages
Print Icon
To Next Page IconTo Next Page
To Next Page IconTo Next Page
To Previous Page IconTo Previous Page
To Previous Page IconTo Previous Page
Loading...
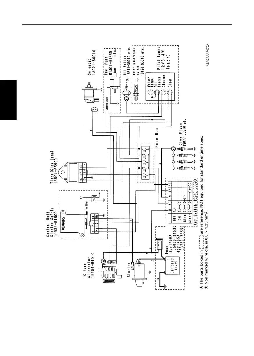
62 WIRING DIAGRAMS
ENGLISH
[D1503-M-E3, D1703-M-E3, D1803-M-E3, V2003-M-E3, V2203-M-E3, V2403-M-E3, V2403-M-T-E3, D1803-M-DI-E3,
V2403-M-DI-E3]

Related product manuals