EasyManua.ls Logo

Kwikee Super Slide - Step 6: Insert Slide Assembly; Important Notes and Cautions

Default Icon
2 pages
Print Icon
To Previous Page IconTo Previous Page
To Previous Page IconTo Previous Page
Loading...
Superslide Installation Instruction Page 2
Kwikee Products Company, Inc.
1217 E 7th Street
Mishawaka, Indiana 46544
www.powergearus.com
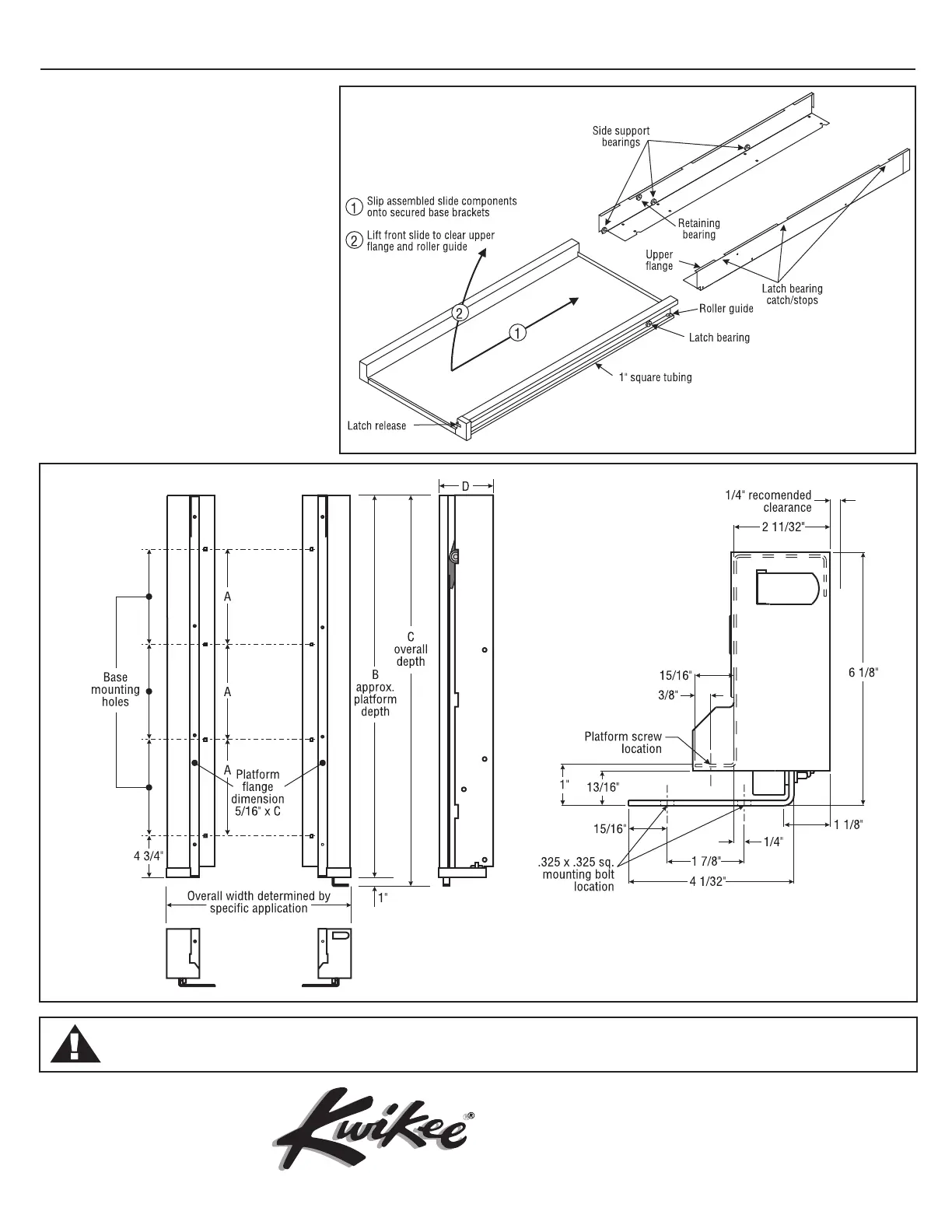
6. With the deck installed, you are ready
to slip the completed slide assembly
into the base brackets that have been
secured to the compartment floor.
Position the 1" square tube located on
the outside of the slide assembly on
top of the slide support bearings. (See
Figure 2.)
Occasionally pull the latch release as
the slide goes in so the latch bearing
will clear the upper flange of the base
bracket and the latch stops. Lift the
front of the assembly slightly to gain
clearance for the roller guide and roller
bearing.
Figure 2
Figure 3
NOTE: Maximum weight capacity: 1,000 lbs. distributed evenly.
CAUTION: If operating the slide assembly when vehicle is not level, use caution.