EasyManua.ls Logo

Lacava EX11 - Page 3

Default Icon
10 pages
Print Icon
To Next Page IconTo Next Page
To Next Page IconTo Next Page
To Previous Page IconTo Previous Page
To Previous Page IconTo Previous Page
Loading...
LACAVA
3
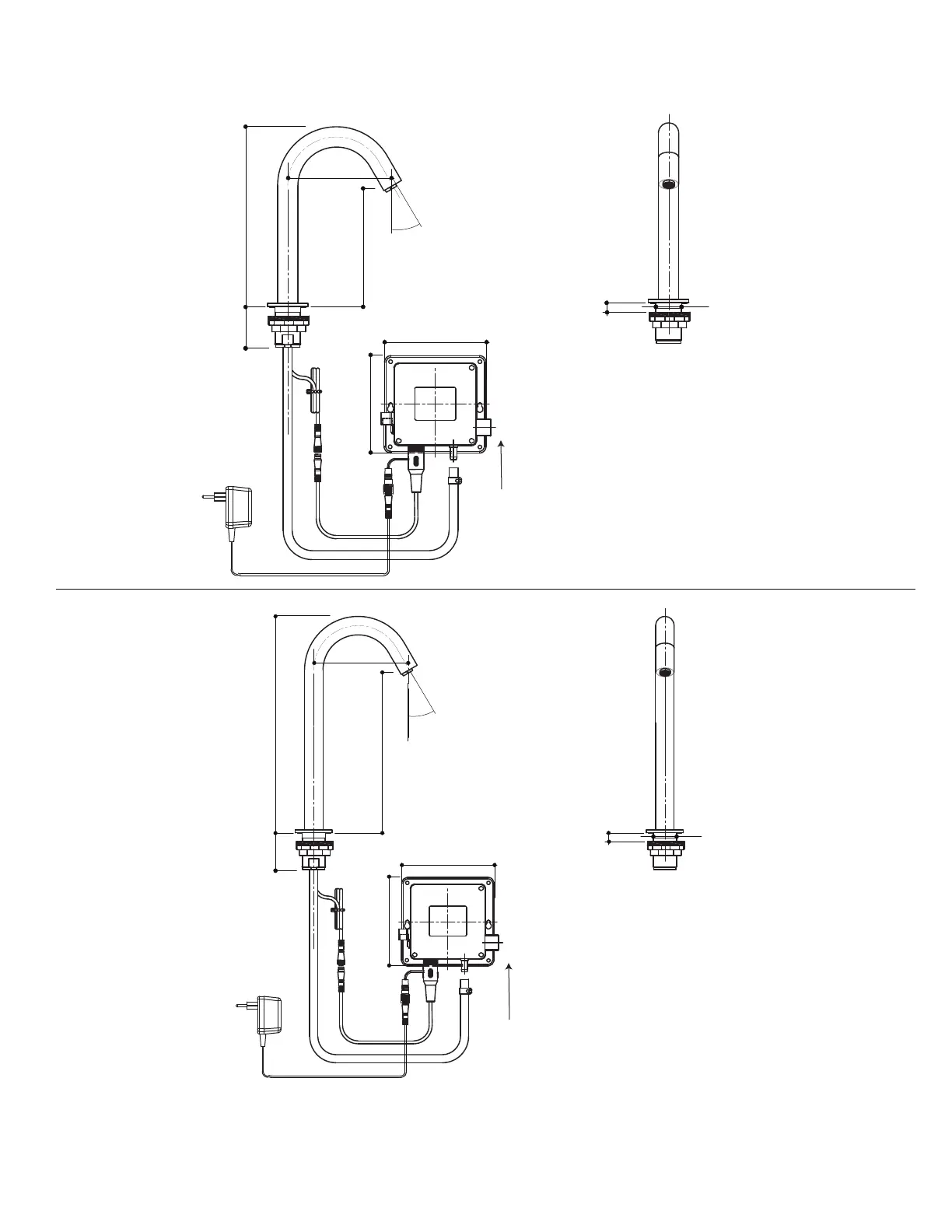
Product Specifications/Especificaciones de Producto
Note:
Drawings provided herein are meant to give the user an idea of the product and are not made to scale. The sizes in
inches are rounded up to the nearest 1/16.
Nota:
Los planos proporcionados en este documento tienen el propósito de dar al usuario una idea del producto y no
están hechos a escala. Los tamaños de pulgadas se redondean al más cercano 1 / 16.
EX31
EX21
IMPORTANT: Install provided
flow reducer on the water inlet
IMPORTANT: Install provided
flow reducer on the water inlet
2”
50
INLET
M1/2”
5"
128
30
o
6 1/2"
165
35
Ø 1 3/8"
Max 1 1/4"
30
9 1/2"
242
4 7/8"
125
4 3/4"
120
2”
50
INLET
M1/2”
5"
128
30
o
9 1/2"
165
35
Ø 1 3/8"
Max 1 1/4"
30
12 1/2"
317.5
4 7/8"
125
4 3/4"
120

Related product manuals