EasyManua.ls Logo

Lauda WKL 230 - Safety Devices and Warning Notes; Safety devices; Warning notes

Default Icon
27 pages
Print Icon
To Next Page IconTo Next Page
To Next Page IconTo Next Page
To Previous Page IconTo Previous Page
To Previous Page IconTo Previous Page
Loading...
LAUDA Water Circulation coolers
WK, WKL
YAWE0019/18.12.01
- 14 -
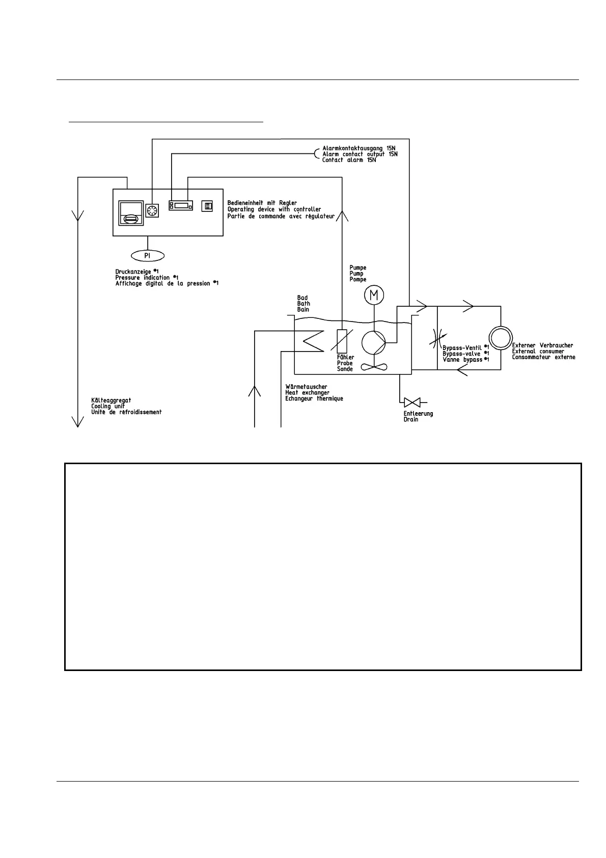
Refrigeration and tempering circuit diagram
* außer / except / sauf WK 500, WK 502, WKL 600, WKL 603, WKL 700, WKL 703
Kältekreislauf ( Anhang)
Schema cooling circuit (Annex)
Schéma de réfroidissement (Annexion)
Artisan Technology Group - Quality Instrumentation ... Guaranteed | (888) 88-SOURCE | www.artisantg.com

Related product manuals