EasyManua.ls Logo

lee dan PK-543 - FINISH INSTALLATION; TEST AND CHECKOUT; OPERATION; Voice Volume Adjustment

lee dan PK-543
2 pages
Print Icon
To Previous Page IconTo Previous Page
To Previous Page IconTo Previous Page
Loading...
LEE DAN
®
COMMUNICATIONS, INC.
Page 2 IN-487 (5/01)
FINISH INSTALLATION
Install the amplifier in one of three manners: 1) Inside
optional JB-200 junction box, 2) In remote location such as
utility closet, basement, etc., 3) To rear of specifically
designed
LEE DAN
entrance panel, in a position that will
not interfere with panel components. Install suite stations on
housings. Do NOT overtighten screws on plastic panels.
Connect power transformer primary to 117 VAC.
TEST AND CHECKOUT
At entrance panel, push each button. Check to determine if the
correct suite is buzzed each time. At each suite, push TALK and
LISTEN buttons to communicate with someone at the entrance
panel; then push DOOR button to check door release option.
OPERATION
1. VOICE VOLUME: is adjustable externally using a small screw-
driver through the port hole on the front of the PK-543
labeled “VOICE VOLUME”.
2. PROGRAMMING SWITCHES:
Switch #
#1
DOOR DELAY: to enable door delay, switch to left. To
disable door delay, switch to right.
#2
SHORT DOOR TIME: with the door delay switch enabled, the
short door delay may be selected. With the second dip
switch to the left, the door delay will be approx. 16
seconds. To the right, the delay is 8 seconds.
#3
ENTRANCE TONE: call tone at entry panel is enabled with
the 3rd dip switch to the right, and disabled to the left.
#4
Not used.
1. Entire System Dead - Check 117
VAC at transformer primary, 16
VAC at transformer secondary,
and wiring to PK-543.
2. No Talk - Check wiring to terminals
1 and 2 shorted or open, and wiring
to entrance panel speaker open or
shorted. Suite station may be tested
by replacement.
3. No Listen - Check wiring to termi-
nals 1 and 3 shorted or open and
short between terminals 1 and 2.
4. No Door Operation - Check wiring to
door release shorted or open, de-
fective door release, and door but-
ton on suite station. Check wiring
to terminals 2 and 3, or 1 and E.
5. No Buzzing - Check wiring to
PK-543 terminal Z, or ZW, panel
push-buttons, and wiring to suite
stations terminal X.
6. Excessive Hum or Distortion Check
wiring installed too close to
electrical wiring or electrical
devices, PK-543 installed too
close to transformers or electrical
devices, twisted pair wiring not
used as required, or PK-543
volume set too high.
7. Radio Interference - Check
connection from the PK-543
terminal G to electrical ground.
Note:
This connection is not
shown on wiring diagram, since
the situation is not always
improved by adding it. If
problems persist, consult factory.
8. Oscillation - Check wiring step 4 on
page 1. If oscillation persists, con-
nect a model 15-MFD non-polar
capacitor across terminals A and G
on the PK-543 amplifier.
Note:
Entrance Tone (if used) will
be lower with capacitor.
3. TONE VOLUME: is adjustable externally using a small screw-
driver through the port hole on the front of the PK-543
labeled “TONE VOLUME”.
NOTE:
Adjust Tone Volume to
maximum only when using PK-502B multi-entrance adaptor.
4. BUZZ 1: ZW terminal is a warble tone output.
5. BUZZ 2: Z terminal is a steady tone output. To be used for call
tone at suite station.
TROUBLESHOOTING
If the system fails to operate properly, check wiring. If wiring is
correct, check the following points:
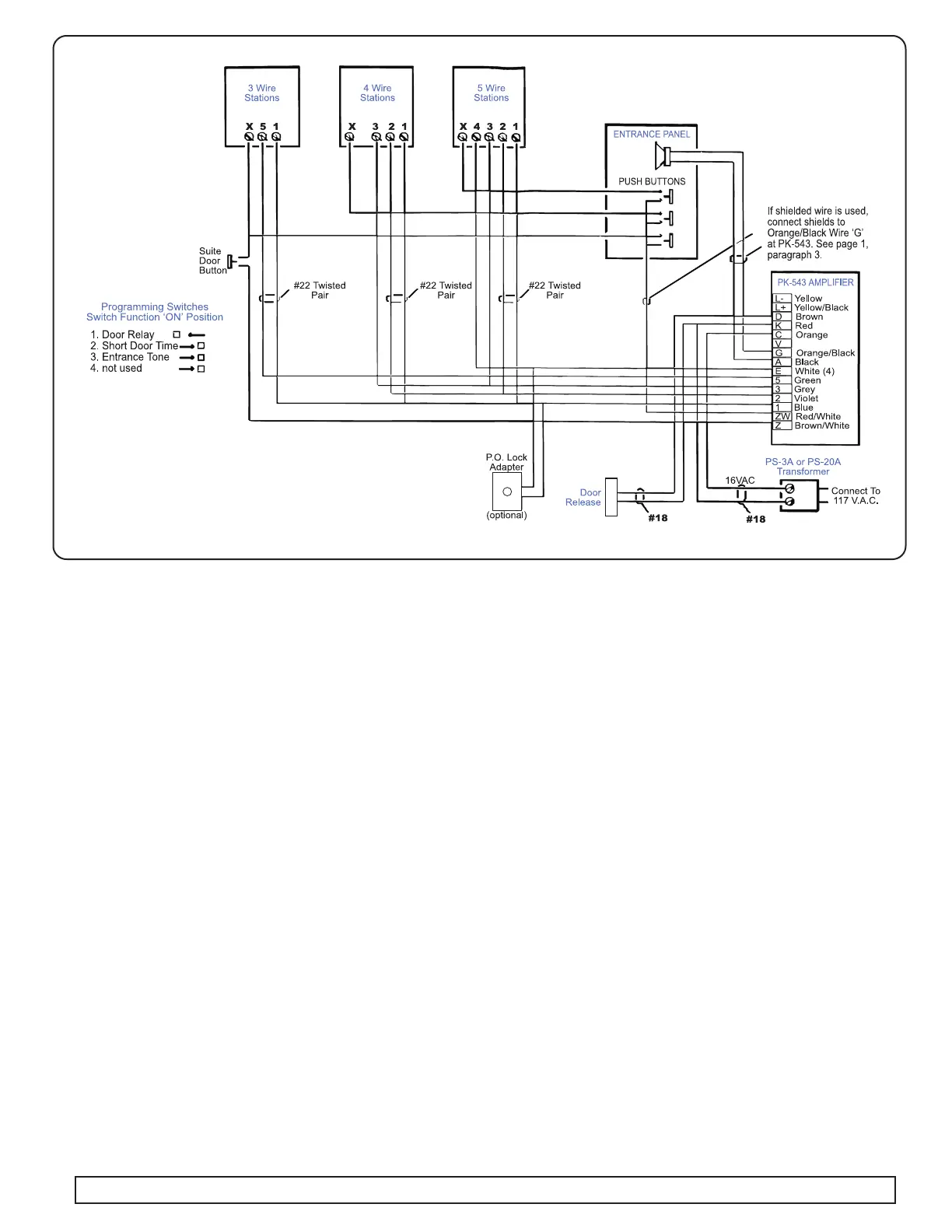
NOTES: 1. USE #22 WIRE UNLESS SHOWN OTHERWISE.
2. IF THE ENTRANCE PANEL HAS A HANDSET, CONNECT IT
IN PLACE OF THE SPEAKER.
3. FOR DC DOOR OPERATION CONNECT DOOR RELEASE
TO L- (YELLOW) AND L+ (YELLOW/BLACK).
4. 3, 4 AND 5 WIRE STATION TYPES MAY BE USED IN ANY
COMBINATION, BUT NOT USUALLY ON THE SAME CABLE
RUN.