EasyManua.ls Logo

Lennox 10GCS-024 - Page 2

Lennox 10GCS-024
16 pages
Print Icon
To Next Page IconTo Next Page
To Next Page IconTo Next Page
To Previous Page IconTo Previous Page
To Previous Page IconTo Previous Page
Loading...
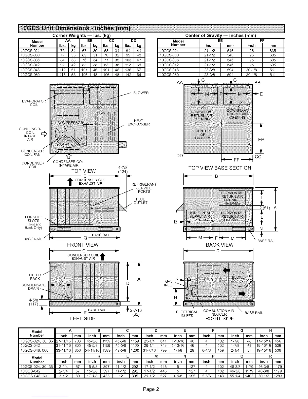
Model
Number
t0GCS-024
t0GCS-030
t0GCS-036
10GCS-042
10GCS-048
10GCS-O6O
Corner Weights -- Ibs. (kg)
AA BB CC DD
Ibs, kg Ibs. kg Ibs, kg Ibs. kg
75 34 67 30 68 3t 9t 4t
77 35 69 3t 70 32 95 43
84 38 76 34 77 35 t03 47
92 42 83 38 83 38 t12 5t
tt2 5t t01 46 t01 46 t36 62
116 53 106 48 106 48 142 64
EVAPORATOR _
COIL
BLOWER
Center of Gravity -- inches (mm)
Model EE
Number inch mm
t OGCS-024 2t -1/2 546
t OGCS-03O 21-1/2 546
t OGCS-036 2t -1/2 546
t OGCS-042 21-1/2 546
t OGCS-048 23-3/8 594
1OGCS-O6O 23-3/8 594
G G
AA
inch
25
25
25
25
30-t/8
30-1/8
BB
FF
mm
635
635
635
635
5tt
511
HEAT
EXCHANGER
CONDENSER
COIL I_
INTAKE
AIR
CONDENSER
COIL FAN
CONDENSER
COIL
.9.
CONDENSER COIL
INTAKE AIR
TOP VIEW
CONDENSER COIL
EXHAUST AIR
FORKLIFT
SLOTS
(Front and
Back Only)
BASE RAIL
FILTER /
RACK
CONDENSATE
DRAIN
4-5/8 _
BASE RAIL
Q
4-7/8
(124)
_i rI-REFRIGE RANT
SERVICE
PORTS
FLUE
OUTLET
4
FRONT VIEW
C
CONDENSER COIL_h,
EXHAUST AIR m
(117) ____ _ R BASE RAIL _!
LEFT SIDE
-(
A
2 -7/16
(62)
J
GAS
INLET
DD
M M
BACK VIEW
C
BASE RAIL
ELECTRICAL COMBUSTION AIR
INLETS INDUCER BASE RAIL
RIGHT SIDE
Model A B C D E F G H
Number inch mm inch mm inch mm inch mm inch mm inch mm inch mm inch mm
10GCS-024 t 30 t 36 27-11/16 703 45-5/8 1159 45-5/8 1159 25-1/4 641 1-13/16 46 4 102 1-7/8 48 17-15/16 456
10GCS-042 3t-11/16 805 45-5/8 1159 45-5/8 1159 29-1/4 743 1-13/16 46 4 102 1-7/8 48 19-15/16 506
10GCS-048,060 33-11/16 856 54-11/16 1389 49-5/8 1260 3t-7/16 799 1-1/8 29 6-1/8 159 2-1/4 57 19-15/16 506
Model J K L M N P Q R
Number inch mm inch mm inch mm inch mm inch mm inch mm inch mm inch mm
10GCS-024 t 30 t 36 2-1/4 57 15-5/8 397 11-1/2 292 17-1/2 445 5 127 4 102 46-3/8 1179 46-3/8 1179
10GCS-042 2-1/4 57 t5-5/8 397 tt-1/2 292 t7-t/2 445 5 t27 4 t02 46-3/8 tt79 46-3/8 t179
10GCS-048, 60 3-1/2 89 17-1/8 435 12 305 2t-1/2 527 4-1/8 105 5-5/8 143 55-1/4 1403 50-1/2 1283
Page 2

Related product manuals