EasyManua.ls Logo

Lennox ML180UH110E60C - Blower Performance Data

Lennox ML180UH110E60C
11 pages
To Next Page IconTo Next Page
To Next Page IconTo Next Page
To Previous Page IconTo Previous Page
To Previous Page IconTo Previous Page
Loading...
Page 4
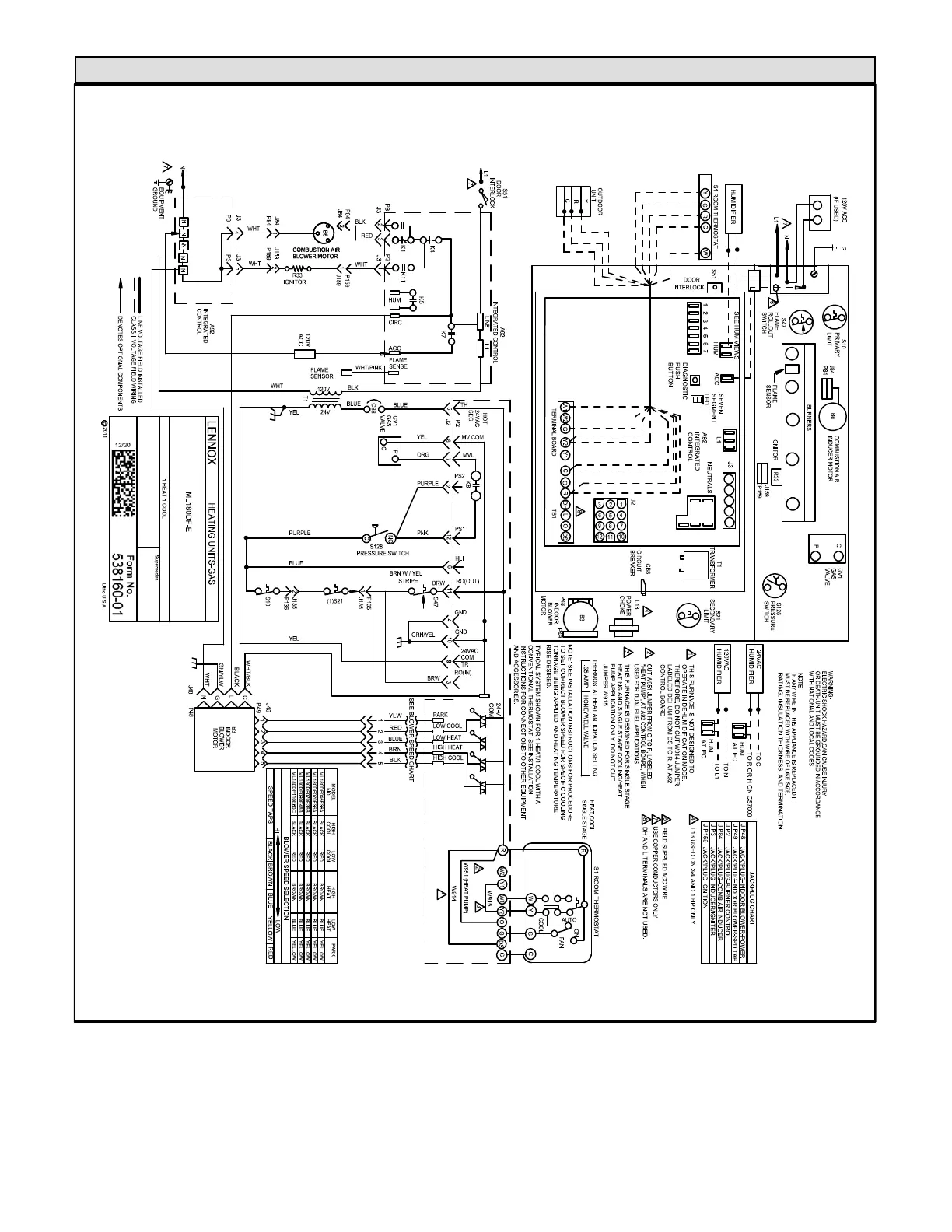
Wiring Diagram ML180DFE
FIGURE 2

Other manuals for Lennox ML180UH110E60C

Related product manuals