EasyManua.ls Logo

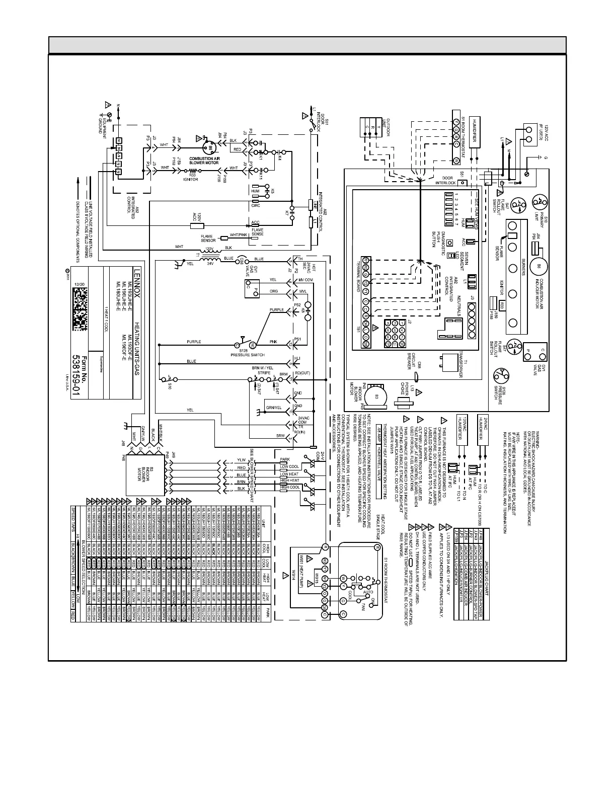
Lennox ML180UHE - Wiring Diagrams and Control Connections; Integrated Control Terminal Identification; On-Board Link Identification on Diagram

Lennox ML180UHE
11 pages
Print Icon
To Next Page IconTo Next Page
To Next Page IconTo Next Page
To Previous Page IconTo Previous Page
To Previous Page IconTo Previous Page
Loading...
Page 3
Wiring Diagram ML180UHE, ML193UHE, ML193DFE, ML196UHE, ML196DFE
FIGURE 1

Other manuals for Lennox ML180UHE

Related product manuals