EasyManua.ls Logo

Lenovo ThinkSystem SR650 V3 7D75 - Page 431

Lenovo ThinkSystem SR650 V3 7D75
518 pages
To Next Page IconTo Next Page
To Next Page IconTo Next Page
To Previous Page IconTo Previous Page
To Previous Page IconTo Previous Page
Loading...
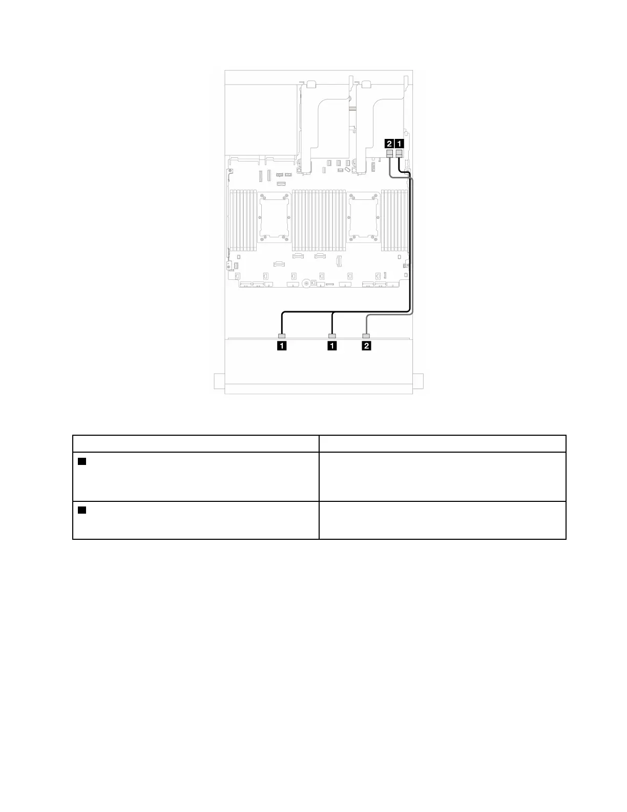
Figure 431. Cable routing to one 16i RAID/HBA adapter
From To
1 Backplane 1: SAS 0, SAS 1
16i adapter
Gen 4: C0
Gen 3: C0C1
2 Backplane 1: SAS 2
Gen 4: C1
Gen 3: C2
Front + rear backplanes: 12 x 3.5" SAS/SATA + 4 x 2.5"/2 x 3.5"/4 x 3.5" SAS/SATA
This topic provides cable routing information for the 12 x 3.5-inch SAS/SATA front backplane and a 2 x 3.5-
inch/4 x 3.5-inch/4 x 2.5-inch SAS/SATA rear backplane.
Depending on the rear backplane you use, refer to the specific configuration for cable routing information.
“12 x 3.5" SAS/SATA + 2 x 3.5" SAS/SATA” on page 421
“12 x 3.5" SAS/SATA + 4 x 3.5" SAS/SATA” on page 423
“12 x 3.5" SAS/SATA + 4 x 2.5" SAS/SATA” on page 424
12 x 3.5" SAS/SATA + 2 x 3.5" SAS/SATA
This topic provides cable routing information for the 12 x 3.5-inch SAS/SATA front backplane and a 2 x 3.5-
inch SAS/SATA rear backplane.
“Onboard connectors + onboard connectors” on page 422
Chapter 6. Internal cable routing 421

Table of Contents

Related product manuals