Home
LG
Air Conditioner
AS-H076QLA0
Page 51 (Wiring Diagrams)
LG AS-H076QLA0 - Wiring Diagrams
89 pages
Manual
To Next Page
To Next Page
To Previous Page
To Previous Page
Loading...
50
2005 Product Data
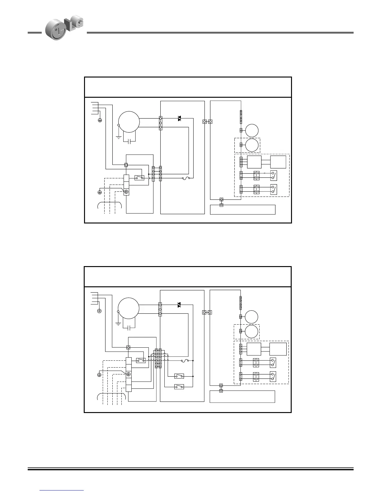
6. Wiring Diagrams
Indoor Units
6.1 Indoor Units
General W
all Mounted C/O(5~24k Btu.), SW
, SQ
, SR, ST
General W
all Mounted H/P (5~24k Btu.), SW
, SQ
, SR, ST
M
OTO
R
OR
RD
BK
BK
BK
BK
BK
BK
BK
BK
BK
POWER
BR(BK/Plained)
BL(WH/Ribbed)
BK
YL
SH-CAP
A
T/BOARD
T
-BLOCK
CN-MO
TOR
THERMIST
OR
STEP
M
OTOR
CN-ACDC1
CN-ACDC2
CN-TH
CN-U/D
CN-L/R
CN-HVB
CN-12V
CN-DISP
DISPLA
Y PWB ASM.
P/No :
3854A20238J
CN-CONT
TRIAC
AC PWB ASM.
DC PWB ASM.
CN-T
AB
R
Y
-COMP
T
O OUTDOOR UNIT
43
1(L)
BR
BR
BL
GN/YL
2(N)
FUSE
250V T2A
STEP
M
OTOR
H.V
.
ASM.
S/W1
S/W2
AIR
CLEAN
(PLASMA)
GN/YL
GN/YL
WIRING DIAGRAM
M
OTO
R
OR
RD
BK
BK
BK
BK
BK
BK
BK
BK
BK
POWER
GN/YL
GN/YL
BR(BK/Plained)
BL(WH/Ribbed)
BK
YL
SH-CAP
A
T/BOARD
T
-BLOCK
RY
-
4
WAY
RY
-
FA
N
CN-MO
TOR
THERMIST
OR
STEP
M
OTOR
CN-ACDC1
CN-ACDC2
CN-TH
CN-U/D
CN-L/R
CN-HVB
CN-12V
CN-DISP
DISPLA
Y PWB ASM.
P/No :
3854A20238H
CN-CONT
TRIAC
AC PWB ASM.
DC PWB ASM.
CN-T
AB
R
Y
-COMP
T
O OUTDOOR UNIT
43
1(L)
BR
BR
BL
BK
RD
GN/YL
2(N)
3
4
FUSE
250V T2A
STEP
M
OTOR
H.V
.
ASM.
S/W1
S/W2
AIR
CLEAN
(PLASMA)
WIRING DIAGRAM
50
52
Table of Contents
Main Page
Table of Contents
2
Models Line up
5
Model Number Nomenclature
7
Features & Benefit
10
Specifications
20
Dimensional Drawings
40
Wiring Diagrams
51
Refrigerant Cycle Diagram
60
Performance Data
61
Coefficient of Capacity Change
80
Operation Limits
82
Air Velocity and Temperature Distributions(Reference Data)
83
Function of Remote Controller
85
Related product manuals
LG AS-H076QGA2/QNA2
68 pages
LG AS-H076PB
63 pages
LG AS-H0764DM0
74 pages
LG AS-H0966KA2
89 pages
LG AS-H096PBC0
62 pages
LG AS-H0964DM0
89 pages
LG AS-H0964DA0
20 pages
LG AS-H096QGA2/QNA2
68 pages
LG AS-H126RKA2
89 pages
LG AS-H1865DM0
89 pages
LG AS-H126RLM0
89 pages
LG AS-H306DGM0(S30AHP-ND6/UD6)
81 pages