EasyManua.ls Logo

LG LAN090HSV - Page 16

LG LAN090HSV
83 pages
Print Icon
To Next Page IconTo Next Page
To Next Page IconTo Next Page
To Previous Page IconTo Previous Page
To Previous Page IconTo Previous Page
Loading...
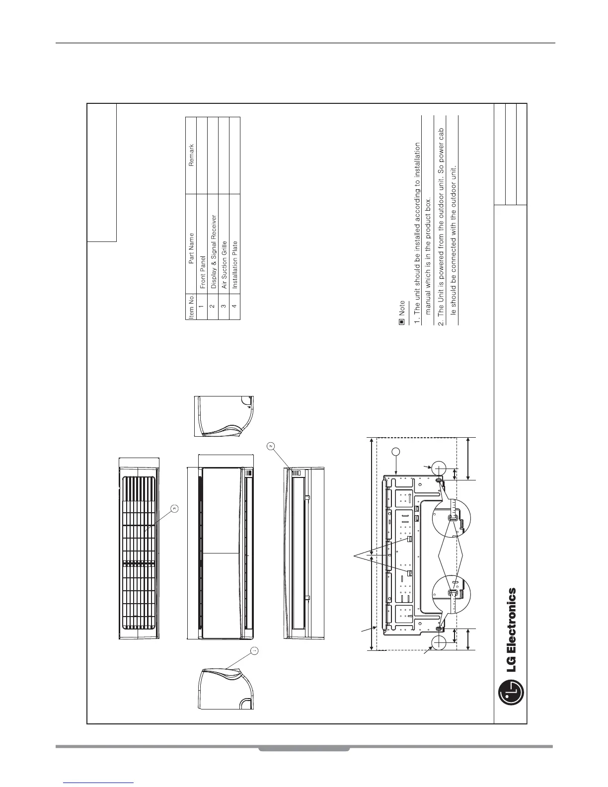
Dimensional drawings6RMI0-02A
15
Inverter Single
Inverter Single
250(9.8)
1030(40.6)
325(12.8)
250(9.8)
Ø70(2.8)
Ø70(2.8)
69(2.7)
56(2.2)
Right rear
piping
Left rear
piping
Installation Plate
Measuring Tape
Measuring Tape
Hanger
Place a level on raised tab
Unit Outline
207(8.1)
105(4.1)
460(18.1) 570(22.4)
WALL MOUNTED
CHASSIS CODE : SC
4
[Unit: mm (inch)]

Related product manuals