EasyManua.ls Logo

LG LAN090HSV - Page 18

LG LAN090HSV
83 pages
Print Icon
To Next Page IconTo Next Page
To Next Page IconTo Next Page
To Previous Page IconTo Previous Page
To Previous Page IconTo Previous Page
Loading...
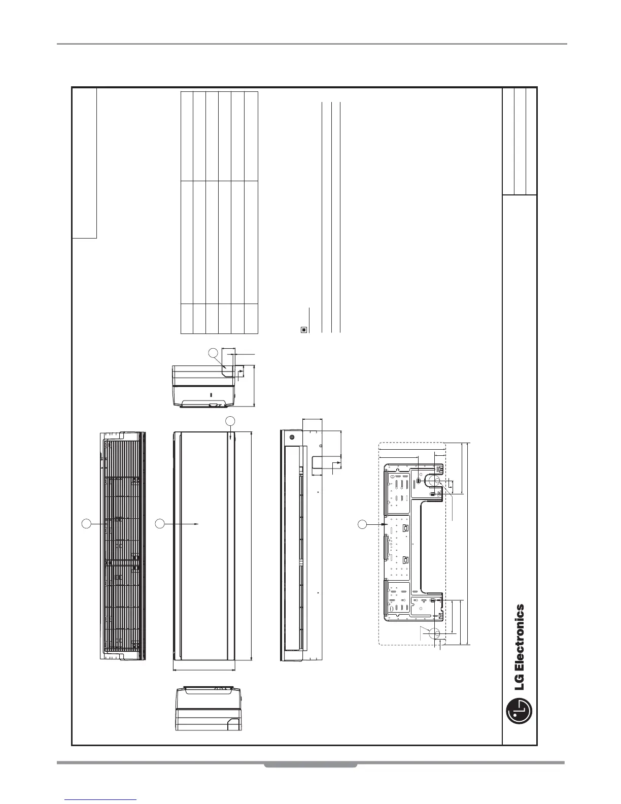
Dimensional drawings6RMI0-02A
17
Inverter Single
140(5.5)
Ø70(2.8)
188(7.4)
926(36.5)
65(2.6)
221(8.7)
45(1.8)
296(11.7)
175(6.9)
Ø70(2.8)
ART COOL Mirror
Display & signal receiver
Part Name
Front panel
Air suction grille
Knockout hole For pipe and cable
No.
2
4
Installation plate
5
3
1
Remark
Note
1. The unit should not be installed in a closed area.
2. In an area or space having no proper circulation, an air guide should
be installed on the outdoor side.
3
1
2
4
299(11.8)
48(1.9)
93(3.7)
122(4.8)
200(7.9)
1107(43.6)
10(0.4)
63(2.5)
53(2.1)
58(2.3)
5
CHASSIS CODE: S8
45(1.8)
[Unit: mm (inch)]
Inverter Single

Related product manuals