EasyManua.ls Logo

LG LAN090HSV - Page 28

LG LAN090HSV
83 pages
Print Icon
To Next Page IconTo Next Page
To Next Page IconTo Next Page
To Previous Page IconTo Previous Page
To Previous Page IconTo Previous Page
Loading...
6RMI0-02A
27
Inverter SingleInverter Single
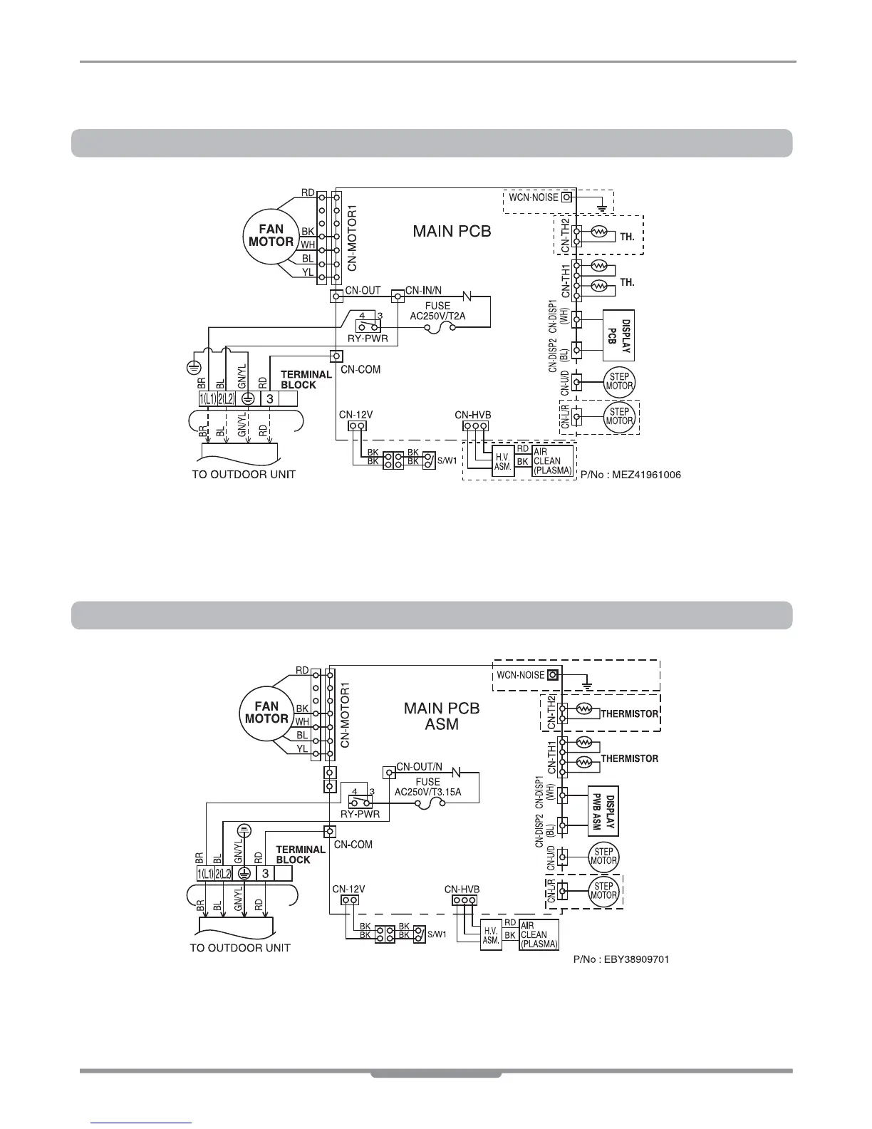
Wiring diagrams
Models: ASUW2435SZ1(LSU246HV)
Models: ASNW303DGH1(LSN306HV)

Related product manuals