EasyManua.ls Logo

LG LB-G3680HL - Refrigeration Cycle Diagrams; Heat Pump Refrigeration Cycle

LG LB-G3680HL
60 pages
To Next Page IconTo Next Page
To Next Page IconTo Next Page
To Previous Page IconTo Previous Page
To Previous Page IconTo Previous Page
Loading...
- 10 -
Copyright ©2008 LG Electronics. Inc. All right reserved.
Only for training and service purposes
LGE Internal Use Only
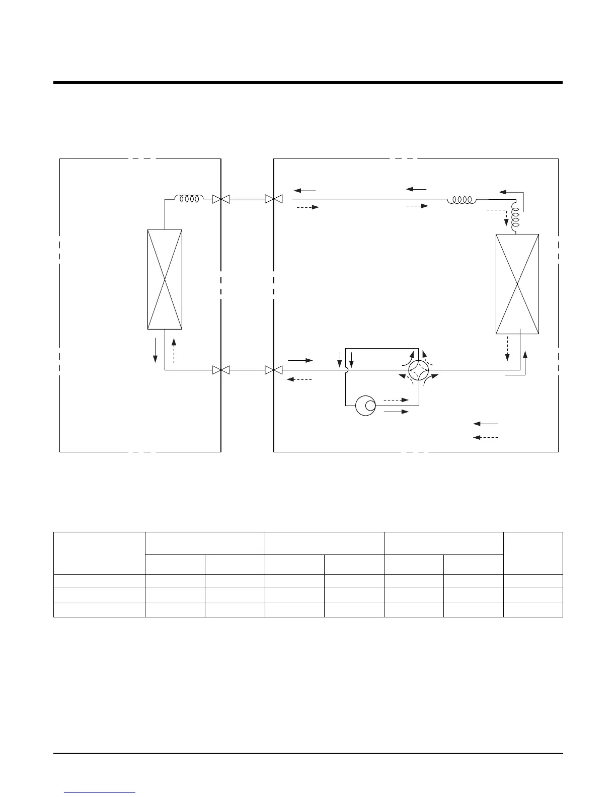
Refrigeration Cycle Diagram
HEAT PUMP
(LB-H1860HL/HP, LB-H1861BL, LB-H2460HL/HP/BL, LB-H2461BL,
LB-G3680HL/HP/BL/BS)
Rated performance for refrigerant line length of: 7.5m
If 18K Model is installed at a distance of 15m, 255g of refrigerant should be added (15-7.5)x30g=225g
INDOOR UNIT OUTDOOR UNIT
HEAT
EXCHANGER
HEAT
EXCHANGER
COMPRESSOR
GAS SIDE
LIQUID SIDE
COOLING
HEATING
REVERSING
VALVE
CAPILLARY TUBE
18K 5/8" 1/4" 7.5 50 5 30 30
24K 5/8" 1/4" 7.5 50 5 30 35
36K 5/8" 1/4" 7.5 50 5 30 45
*Additional
refrigerant
(g/m)
Pipe size(Diameter: ø) Piping length(m) Elevation(m)
MODEL
Gas Liquid Rated Max. Rated Max.

Related product manuals