EasyManua.ls Logo

LG LFC20760 Series - Connect the Tubing to the Refrigerator; Start the Icemaker

LG LFC20760 Series
45 pages
To Next Page IconTo Next Page
To Next Page IconTo Next Page
To Previous Page IconTo Previous Page
To Previous Page IconTo Previous Page
Loading...
-26-
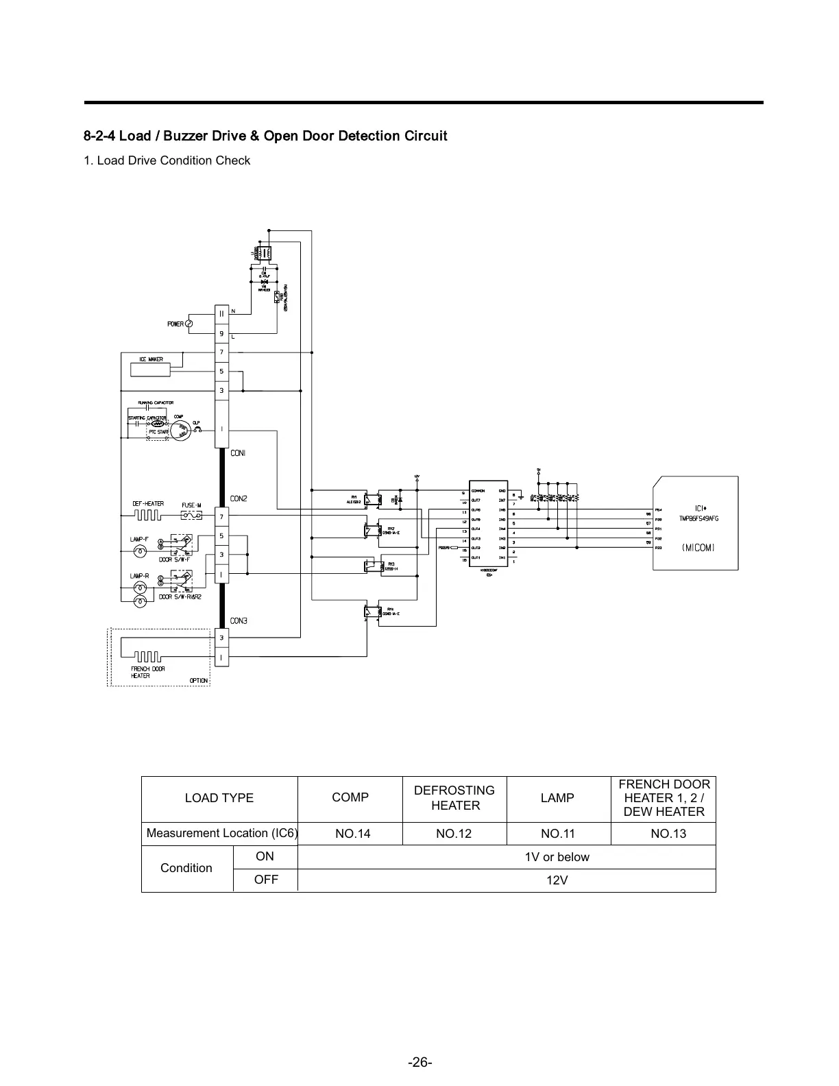
8-2-4 Load / Buzzer Drive & Open Door Detection Circuit
1. Load Drive Condition Check
LOAD TYPE
COMP
NO.14 NO.12 NO.11 NO.13
1V or below
12V
DEFROSTING
HEATER
LAMP
FRENCH DOOR
HEATER 1, 2 /
DEW HEATER
Measurement Location (IC6)
Condition
ON
OFF
https://appliancetechmanuals.com

Other manuals for LG LFC20760 Series

Related product manuals