EasyManua.ls Logo

LG LP073HDUC - Page 44

LG LP073HDUC
55 pages
Print Icon
To Next Page IconTo Next Page
To Next Page IconTo Next Page
To Previous Page IconTo Previous Page
To Previous Page IconTo Previous Page
Loading...
- 44 -
Copyright ©2012 LG Electronics. Inc. All right reserved.
Only for training and service purposes
LGE Internal Use Only
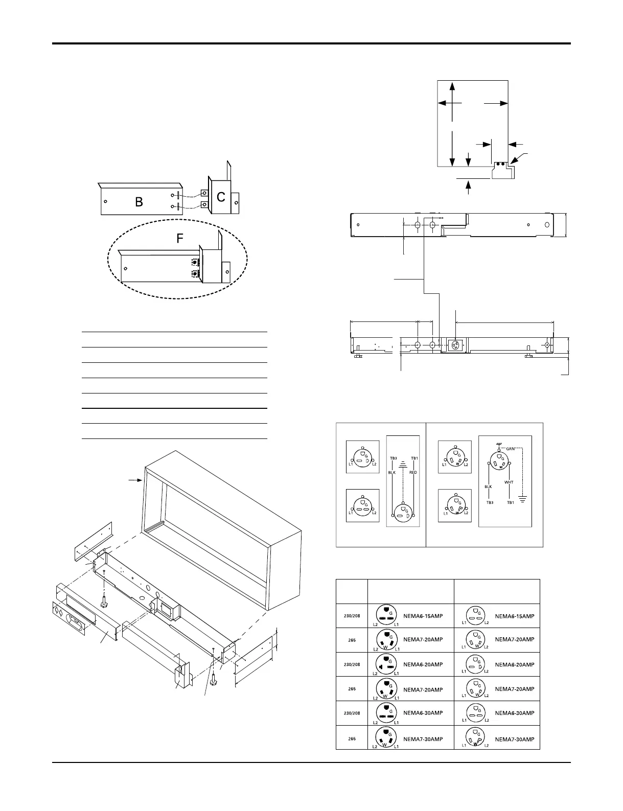
Note:
The proper subbase must be ordered to obtain the correct
electrical receptacle. (Figure 60)
8. After wiring is complete, mount covers A and F to the
subbase with provided screws. (Figure 57)
9. When installing optional accessories to the subbase, refer
to each installation instruction for that accessory.
Figure 55
Part/Location Identification
A
B
C
D
E
F
Left Front Cover
Right Front Cover
Front Cord Panel
Wall Sleeve Hole Location
Skirting Hole Location
Right Cover Assembly
Wall Sleeve
Cover
Wiring
Access
Subbase
Box Assy
Low Voltage
Compartment
2-13/16"
(71 mm)
11-13/16"
(300 mm)
A
B
F
C
E
D
D
E
Wall Sleeve
(Outdoor Side)
Wall Sleeve
Inside Edge
Back of
Flange "A"
13 3/4"
2 3/4"
2 5/8"
13-7/8" (352 mm)
3-1/16"
(78 mm)
Left End View
Concentric
Knockouts In Bottom
Ground
Screw Location
Receptacle Provided
Inside subbase
Accessory
Top View
Concentric
Knockouts In Rear
Field Wiring
Line Voltage
Field Wiring
Line Voltage
NEMA 6-20R
Receptacle
230/208 VAC Field Schematic 265 VAC Field Schematic
NEMA 6-30R
Receptacle
Voltage Subbase ReceptacleUnit Plug
NEMA 7-30R
Receptacle
NEMA 7-20R
Receptacle
Front View
20-5/16" (515.5 mm)
2" (50 mm) Max.
Adjustment
4" (101 mm)
2-5/8" (67 mm)
2" (50 mm)
2 3/4"
16"
16"
1-3/8" (35 mm)
Figure 57 - Part/Location Identification
Figure 58 - Dimensions
Figure 59 - Wiring Diagram
Figure 60 - NEMA Plug Configurations

Related product manuals