EasyManua.ls Logo

LG LS-H246TNB0 - Heat Pump Model

LG LS-H246TNB0
68 pages
To Next Page IconTo Next Page
To Next Page IconTo Next Page
To Previous Page IconTo Previous Page
To Previous Page IconTo Previous Page
Loading...
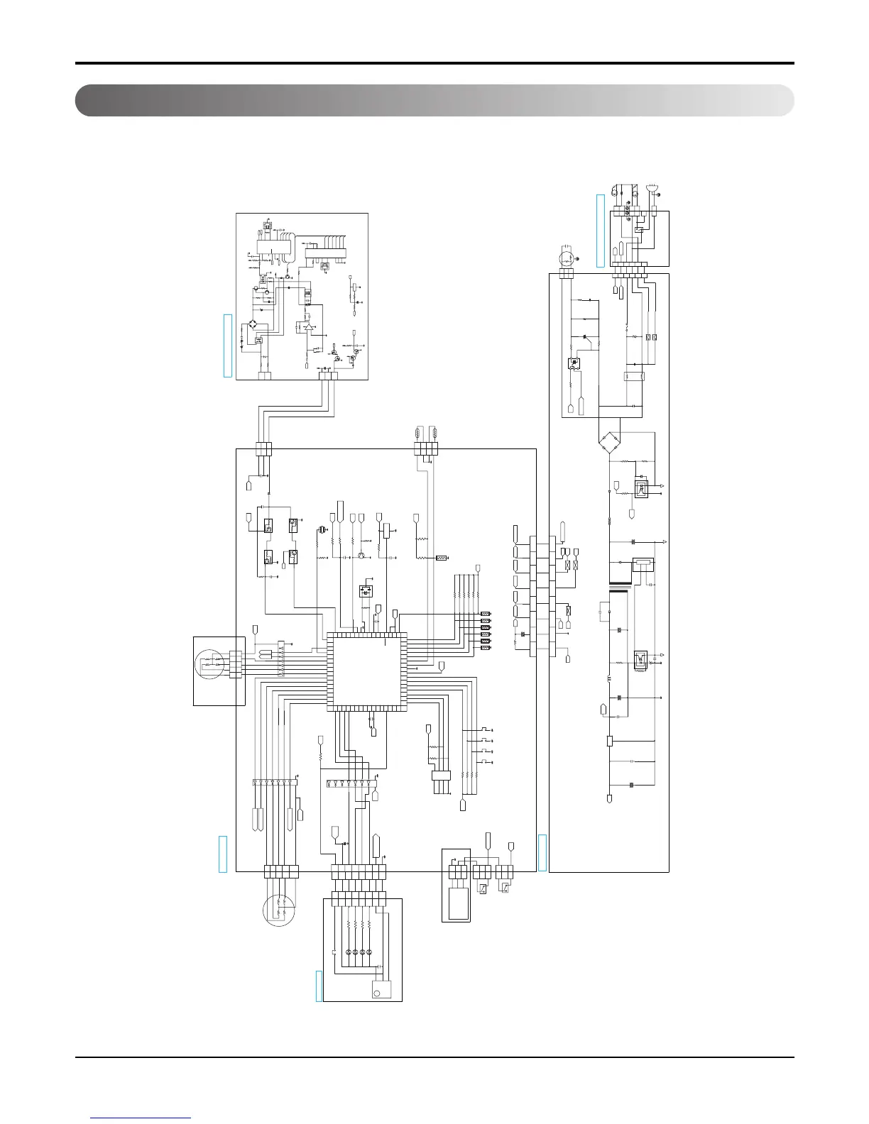
42 Room Air Conditioner
Schematic Diagram
Heat Pump Model
VP
16
1
5V
5V
R09H
C104S
Q03T
A104S
Q01T
5V
1K
C104S
Q02T
CN-TELE
C01D
C01T
100uF/25V
0.001uF
1N4148
D01T
A104S
Q04T
50V
TX
5V
C06H
0.1uF/50V
R01T
0.001uF
50V
C02T
RX
1K
CST-3.58M
OSC02B
ZD02H~ZD03H
5.1V, 1/2W
4.7K
R02A
R03A
100
10uF
50V
C01A
RST
R01A
1K
+
KIA7036P
IC01A
1
2
3
5V
DSO
Q2
Q3
Q0
DE
EST
15
Q1
D2
NC
X2
D3
DV
12
13
14
VSS
D0
NC
OE
10
11
D1
100K
VREF
X1
R01X
5
8
9
6
4
7
0.1uF/50V
C02H
RY-HOOK
ZNR01
R19H
BSP351L
R15H
10K
R18H
2.7 1/2W
2.7 1/2W
BD
C05H
100V
0.01uF
G6A-234P,5V
HR93F,5V
8
4
R12H
LM358
OP-AMP
1K
-
+
6
5
5V
ZD04H~ZD05H
CN-PHONE
3.9V, 1/2W
1uF DC250V
C01H
ZD05H
ZD04H
R01H
6.2K/1W
RST
DE
BD
100K
R07H
4.7K
R03H
7.5K
C03H
22uF
50V
+
R14H
R13H
750
270
ZD02H
C08H
7
50V
0.1uF
0.15uF
63V
C11H
ZD03H
5V
R05H
27
Q03M
2222A
2
27
3
R06H
63V
Q01M
C3198Y
R01M
4.7K
C09H
1uF
+
1N4004
D01M
100K
R16H
TRANS
T1
1/4W
6.2K
R02H
ZD01H
1.5KE56A
1N4004
D01H~D04H
KTC2016
PC01H
1
R04H
4
TLP621BL
5V
Q02M
RA3
2K
0.1uF
C02X
16
OSC2
15
OSC1
14
4
5
VSS
MCLR
3
T0CLK
RB4
9
RB3
13
6
RB0
RB5
10
RB6
11
12
8
7
RB2
RB1
RB7
VDD
OP2
10K
DE
DSO
5V
IC-DTMF
(ST9170)
HT9170B
VN
VDD
18
GS
RI
17
50V
51K
R17H
2
3
5V
R01B
1M
Q0
Q3
Q2
Q1
50V
CST-4.00MGW
OSC01B
C01X
0.01uF
16V
MICOM
RA1
18
17
RA0
1
RA2
2
PIC16C54CR
C04H
1uF
R08H
5V
OP1
10K
TX
RX
S/W(FORCE)
Operation
Defrost
Timer
Sleep
9
13
14
12
16
15
11
10
17
22
20
19
21
18
23
24
63
4
1
3
2
64
5
6
8
7
59
61
60
62
58
57
40
31
25
28
27
26
30
29
36
35
37
33
38
39
34
32
50
53
54
55
51
52
56
45
46
48
47
49
44
41
42
43
DISPLAY
R02E,20
UPD780023AGC-C
ZBF503D
ZD02D
VOLTAGE GND
BZX55C11
2
1
6
8
7
4
5
3
HVB
LED1
LED2
LED3
LED4
C01A
RECEIVER
104
Vout
GND
Vcc
R02G 220
R03G 220
R04G 220
R01G 220
AC PART
5V
25V
10V SD
R02D
DC LOW
1/6W
20K
S78DL05L 1W
103
C08D
+
220
C09D
I
O
7805
IC04D
25V
103
C07D
12V
25V SD
C06D
330
L1
IC01G
KID65004AF
HVB OUT
12V
33
1
1
3
2
1
2
2
1
2
1
3
2
2
CN-CONT
CN-12V
1
1
3
2
3
CN-HVB
Option
1
2
5V
R11H~R14H
20K 2012
receiver
+
6 66
8
7
8
7
8
7
2
1
5
4
3
4
5
1
2
33
4
2
5
1
5V
9
5V
10V
C02L
220uF SD
5V
R11H
OJ1H
OJ2H
OJ3H
8
7
6
5
EEPROM
Vcc
SCL
SDA
WP
G
1
2
3
A0
A1
4
A2
CAT24WC01J
R14H
R13H
R12H
20K
R01P
2012
R02P
20K
2012
OJ4H
5V
8
20K
R02F
7
3
4
5
2
6
1
5V
Vss0
Vdd0
C04C
103
A
d
1
d
V
NEC
TERMINAL BOARD
STO2D-200
SD01D
TNY266P
DC HIGH
VOLTAGE GND
D
5
4
1
IC02D
DC HIGH
VOLTAGE GND
TLP421(V4 BL)
C05D
472M
32
104
50V
C02D
EN
4
S
2
BP
1
D07D
UG2D
470/35V/SD
C03D
681
RY-4WAY
1/6W
R03D
39
+
C04D
1
8
5V
CN-ACDC
CN-ACDC2
INT
3
6
2
7
12V
SMPS
5
4
4
5
7
2
6
3
RY-FAN
RY-COMP
4.7uF
VOLTAGE GND
TLP421(V4 BL)
450V/SD
IC01D
DC LOW
IC03D
LL4148
D08D
VOLTAGE GND
1
4
DC HIGH
2
3
1/4W
300K
R06D
NTC SCK-102
+
C01D
INT
INDOOR FAN12V
8
1
12V
12V
R05D
1/4W
300K
3216
5V
27k
1/6W
R04D
D05D
1N4007
IN4007
D01C
D01A
IN4007
R01E
1K
1%
OR1H
F1
OR5H
Med
L2
10nH
Hi
OR6H OR3H
O/L
OR2H
F2
OR4H
Low
C02C
220uF
10V/SD
5V
+
5V
R21H
INT
4WAY
5V
FAN
COMP
R22H
R25H
R26H
R24H
R23H
R21H~R26H
12.1K, 1%
5V
X2
RESET
AVdd
AVref
s
s
V
A
C03C
103
INT1
X1
Vss1
INT0
B
Z
CSTS0800MG03-T2
CRTL8.00MSOT
OSC01B
5V
R01B
1M
Q01C
2SC5343
KTC3198-Y
33
6.2K
12.1K
INDOOR FAN
12V
1%
R05H
10K
11
2 2
3.6V
2
1
C01A
3
50V
0.01
R02A,20K
R04H
R02H
KIA7036P
S7136
IC01A
5V
5V
680pF/50V
C01L
R01L 5.1K
R02L,1K
R07D
56K
R06D
12K
BZ01E
5V
receiver
PKM13EPY-4002
5V
INT
44
CN-TH
SM1L43
TRAICS
RY-FAN
250V/T2A
G5N-1A(G5NB-1A)
RY-4WAY
G5N-1A(G5NB-1A)
TVR10561
METAL FILM
METAL FILM
47nM/275V/435D
100nM/275V/436D
4
4
3
3
1/4W
560
R04J
INDOOR FAN
IN4007
D01D
IN4007
D01B
C02J
12V
IC01J
TR01J
TLP762JF
15mH/1A
NF01J
C01J
R02J
100,1/2W
T1
FUSE
ZNR01J
4
5
3
1
2
T2
R03J
680
1/2W
11
13
RY-COMP
G4A-1A-E-LG
12
15
1
4
3
1
1
CN-TAB1
120, 1/2W
RY-COMP
100nF/275V/436D
METAL FILM
C03J
ZNR02J
TVR10561
1
12V
2
6
8
R01J
2
3
1
2
3
1
CN-MOTOR
12V
RY-COMP
1
3
6
9
5
2
4
SH-CAPACITOR
FAN
MOTOR
INDOOR
PIPE-TH
ROOM-TH
+
1
2
3
3.6V
1
1(L)
1
N
L
AC220~240V
50/60Hz
COMPRESSOR
5
2
4
2(N)
4
3
OUTDOOR
FAN MOTOR
4-WAY
PK
16
(UP/DOWN)
STEPPING MOTOR
9
KID65004AF
DC PART
CN-U/D
3
2
YL
OR
RD
4
5
PK
BL
1
3
2
4
5
1
COMP
HVB OUT
12V
INDOOR FAN
3
2
8
1
4
5
IC01M
6
7
1
STEPPING MOTOR
(LEFT/RIGHT)
BL
2
2
Option
Q03T
C104S
Q02T
A104S
4WAY
9
8
121314 1011
43
7
5
6
FAN
2
15
KID65004AF
IC02M
CN-L/R
RD
5
4
5
4
OR
1
1
3
3
YL
12V
1K
5V
C03T
102
R01T
102
A104S
Q04T
Q01T
C104S
5V
C02T
22
104
1N4148
D01T
11
CN-TEL
5V
C01T
33
TELE (OPTION)
2
1
LED TYPE

Related product manuals